139㎡现代意式:在喧嚣世界,筑一座宁静而优雅的栖心堡垒 - 今日头条
2026.03.04 2 0

本期要为大家分享一套139方现代意式风的案例。
本案以现代意式美学为根基,展陈凝练的秩序与克制的优雅。空间以黑白灰为主调,搭配活力橙,如同平凡日常中那些不期而遇的惊喜,为整体氛围注入更多的生动情绪。

格局上,设计师重新梳理了脉络,让功能规划、动线分布更贴合居者的实际生活场景。最大尺度被让渡给公共区域,开阔通透的交互场域内,所有的言谈欢笑,自然地化作生活中那些温暖、珍贵的画面。

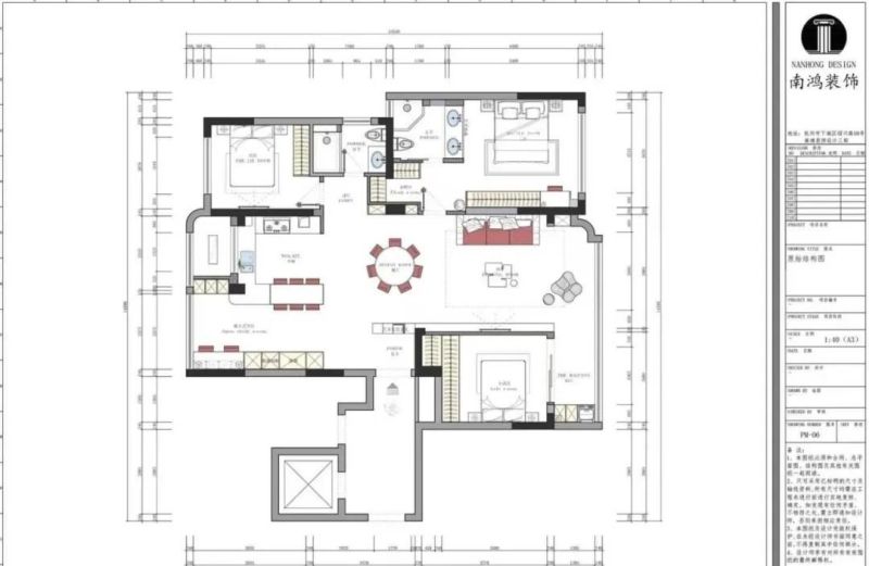
▲平面方案
实景赏析

入户以一道艺术装置作为序幕,隔断形式遮挡视线,增强步入的仪式感。

白与灰的基底色在客厅内铺开沉静雅致的氛围,不同材质和谐搭配,在清爽明朗之余,更赋予空间富有层次的艺术感。

悬浮型电视背景框架筑于温润的木饰面之上,留足视觉呼吸的余裕。开放层架方便收纳日常点滴,陈示生活的温度和情致。

客厅两侧均装饰奢石,独特的纹理与光泽为空间注入美妙、精致的现代旋律。材质的冷暖对比,亦赋予场域一种静谧、从容兼具大气的格局。



低饱和度软装延续平稳气质,一抹橙调的单人沙发则起到提亮的作用。隐形门设计延展横向视觉尺度,使立面完整流畅,于宁谧中暗蕴张力。

餐厅分设中西两种模式:一侧是传统圆桌,围拢聚餐时的温暖;一侧是现代感岛台餐桌,放大互动的自在。设计在丰富餐厨空间功能形态的同时,更让情感与生活在此完美融合。


西餐厅与厨房相联,构成一体化高效互动场域,紧凑动线中,功能交织凝练有序。顶部选配艺术吊灯,打造一处美观精致的视觉焦点。深灰系厨房彰显干练气质,L型操作台延伸出岛台与餐桌结合,结构流畅完整,兼具烹饪效率与互动可能。

餐边柜向窗台衍伸出一方安静的书桌角落,在光的描摹下,成为日常生活中一处自在栖息地,既可随性办公或阅读,又方便小酌、享用茶点小食,自由随心。

意式格调卧室,以经典黑白灰为底色,低调中内含奢华之意。背景面融合护墙板与硬包材质,纵向的线条搭配镶嵌的奢石纹理,简练又优雅地勾勒出从容生活之姿。

阳台融入室内,延展了公共区域的物理尺度,让充沛的自然光自由抵达整个空间。与客厅、次卧紧密相连的动线,就此在开放与独立之间构筑出灵活流动的家屋格局。

配置家政柜,并嵌入洗衣、烘干机,家务流程简便顺畅,空间回归整洁与宁静。

卫浴空间整体铺陈微水泥质感的大规格瓷砖,将深邃的意式格调沉稳延续。
项目信息
项目名称:烟波飞鹭
设计风格:现代意式
项目类型:三室两厅
项目地点:中国·杭州
项目面积:139㎡
项目服务:设计·施工·硬装·软装 全案设计
设计团队:杭州南鸿装饰 许明
设计单位:浙江南鸿装饰
施工单位:浙江南鸿装饰
本网站的文章部分内容可能来源于网络,仅供大家学习与参考,如有侵权,请联系站长QQ18376601进行删除处理。

蜀ICP备2021014085号-4