132㎡侘寂风,快节奏生活的治愈系时光
2026.03.11 1 0
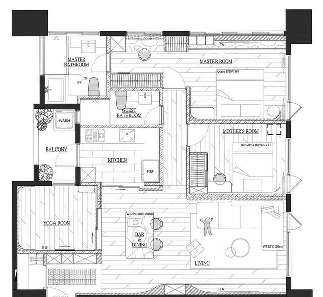
在这套132㎡的侘寂风住宅中,设计师以天然材质与低饱和色调构筑了一处治愈系精神港湾,微水泥墙面、原木家具与藤编元素交织出质朴肌理,局部弧形造型弱化空间棱角,搭配暖调灯光营造松弛氛围,全屋采用开放式布局,客餐厅与书房以通透玻璃隔断相连,在保留功能分区的同时实现光影流动,摒弃繁复装饰,仅以枯枝陶罐、褶皱布艺点缀,将侘寂美学"不完美的完美"融入现代生活,为都市人打造了一方可触摸时光温度的诗意栖居地。(148字)
"每天推开门就像误入闹市——孩子的尖叫、长辈的唠叨、手机的消息提示,连空气都在嗡嗡作响。"
这套132㎡的侘寂风住宅,正是为被噪音绑架的都市人设计的解压舱,设计师没用一句禅语,却把"静音模式"嵌进了每处肌理。
弧形收纳墙:客厅的镇静剂
最惊艳的是客厅那道波浪形曲面墙,40cm进深的内腔里,玩具箱、医药包、清洁工具像被施了隐身术,连吸尘器都能横卧其中,当柜门缓缓合拢,仿佛给喧嚣按下暂停键。
墙面凿出的三个异形窗洞,像孩子咬了一半的糯米纸,阳光穿过时在地面投下不规则光斑,业主反馈:"孩子第一次见到时,竟自己趴在光斑前发了十分钟呆。"

玄关木格栅:归家仪式启动器
入口处的橡木格栅藏着精妙机关:每条缝隙都预埋了感应灯带,电梯门开启的瞬间,暖光如呼吸般渐次亮起,钥匙随手插进木缝的咔嗒声,成为切换"生活模式"的开关。

中岛台:家庭关系修复站
1.8米的岩板中岛暗藏玄机:台面下方的凹槽是"电子监狱",所有手机必须屏幕朝内"面壁思过",被迫面对面吃饭的一周后,孩子开始主动分享幼儿园的"江湖恩怨"。

主卧系统:社畜回血舱
青灰蓝的推拉门闭合时,像将晨雾凝结成墙,床头整面微水泥薄板背后,是能吞下所有杂物的隐形收纳系统,色彩实验室数据显示,这种"雾霾青"能使心率平均降低8次/分钟。

适老化细节:歪斜的温柔
父母房放弃网红榻榻米,预留的600mm通道足够轮椅回转,故意装歪的钛金衣柜拉手,像老人贴歪的膏药,反而让空间有了温度,当3000K暖光漫射在粗陶墙面上,连血压计的数字都变得柔和。

卫浴空间:五感SPA实验室
干区仅留的窄缝窗正对桂花树,沐浴时能捕捉到风带来的甜香,湿区特意选用的凹凸岩板,光脚踩上去的轻微刺痛感,让人恍惚置身箱根的山间汤泉。

造价控制秘诀
全屋采用"悬浮战术":所有系统柜距地90cm悬空,既减轻视觉负担,又为扫地机器人开辟无障碍通道,弧形吊顶巧妙包裹结构梁,顺带隐藏了电动投影幕布。

2026年的侘寂风早已进化——奶茶色科技布沙发可抵御可乐袭击,白橡木格栅与亚麻帘组成光影过滤器,三个月后回访时,业主笑着展示墙面的"失误":当初尺寸算错的窗洞,如今成了猫咪最爱的观景台。

"真正的侘寂不是视觉游戏,"设计师指着那道歪斜的光束说,"是教会房子接纳生活的毛边。"当墙面学会呼吸,住在里面的人自然能找到自己的节奏。

本网站的文章部分内容可能来源于网络,仅供大家学习与参考,如有侵权,请联系站长QQ18376601进行删除处理。

蜀ICP备2021014085号-4