600㎡现代轻奢宅,晨光至灯火的诗意栖居
2026.04.23 2 0
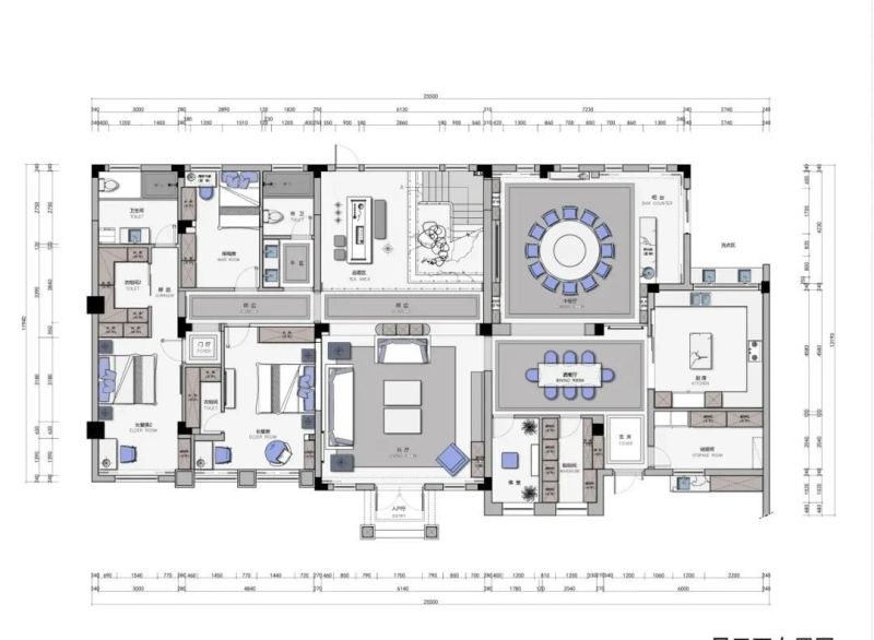
【现代轻奢大宅设计】本案为600㎡现代轻奢风格住宅,以"晨光熹微至灯火可亲"为设计主线,通过高级灰主调搭配香槟金、古铜色金属元素,营造低调奢华的居家氛围,空间采用开放式布局,客厅6米挑空设计搭配全景落地窗,实现自然光影与室内灯光的诗意过渡,意大利进口家具与定制水晶吊灯凸显品质,餐厅岛台采用整块天然大理石打造,主卧配备270°观景飘窗与智能化家居系统,设计师巧妙运用艺术漆、丝绒面料与线性灯光,在简约中注入精致感,实现"日光与灯光交织、功能与美学并重"的理想居所,完美诠释现代精英阶层对品质生活的追求。
本案以东西方美学碰撞为灵感,通过材质对话、色彩交响与细节雕琢,打造出兼具国际视野与东方底蕴的奢雅居所,设计师摒弃符号化表达,让现代极简线条与古典比例韵律在空间中自然生长,最终呈现出一处能让心灵沉淀的当代雅居。
色彩与造型的和谐奏鸣 空间主调选用不同明度的灰阶色系,通过深浅变化营造丰富的视觉层次,所有转角均采用弧形收边处理,刚柔并济中传递出温润气质,立体雕花线板贯穿墙面,在光影变幻中勾勒出极具韵律感的几何美学。
客厅:多元社交的艺术舞台 挑高客厅与品茗区形成开放式社交矩阵,既能承载商务会谈的正式感,也可切换为家庭聚会的温馨模式,L型真皮沙发与单人休闲椅形成围合布局,不同材质的碰撞演绎出丰富的质感交响——天然大理石的冷峻与丝绒的柔媚、金属的璀璨与木质的温厚,共同书写空间的多重性格。
餐厅:东西方饮食文化的共融 双餐厅设计满足多元生活场景:

- 中式宴客厅:圆形穹顶搭配水晶吊灯,环形餐桌暗合"天圆地方"的东方哲学
- 西式餐吧区:嵌入式酒柜与岛台形成高效备餐动线,岩板长桌可随时变身为家庭工作区
品茗区:光影交织的禅意之境 楼梯挑空区打造的茶室成为精神驿站,晨光透过纱帘在茶席上流淌,实木茶盘与紫砂壶在光影中沉淀出时光的质感,背景墙的山水纹大理石与窗外庭院景致虚实相映,营造"不出城郭而获山林之怡"的意境。

楼梯:凝固的空间乐章 悬浮式金属楼梯宛如一件现代雕塑作品,踏面采用雪花白大理石逐级错落,顶部垂落的流星灯饰与踏步下的灯带形成光影呼应,行走其间仿佛穿梭于时空长廊,整面落地窗将四季风景引入室内,实现建筑与自然的无声对话。

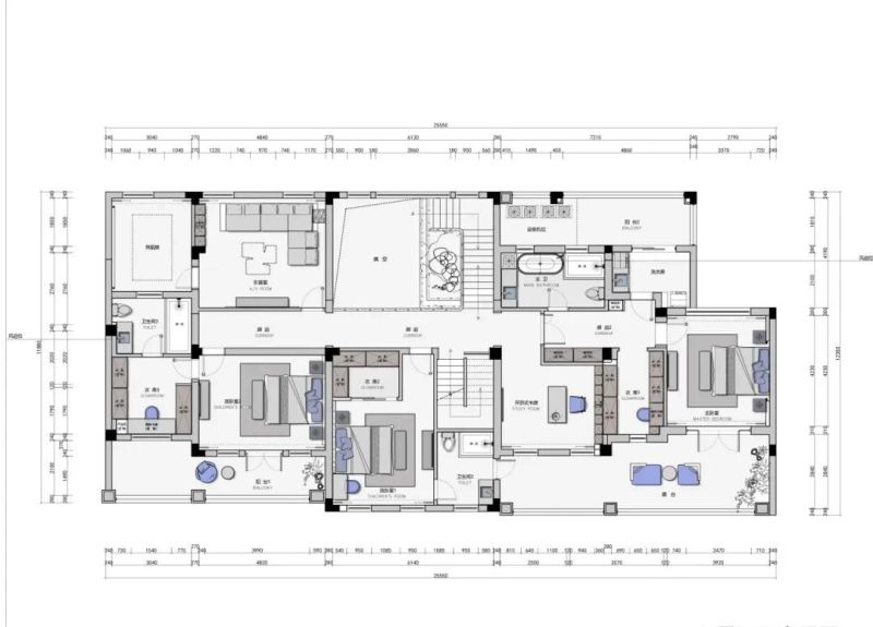
卧室:量身定制的私密宇宙 主卧套房采用酒店式布局:

- 睡眠区:弧形软包床头墙搭配隐藏式灯带,营造云端般的入睡体验
- 男孩房:雾霾蓝麂皮硬包墙面搭配可变形家具,满足成长需求
- 女孩房:莫兰迪粉几何拼色墙与弧形梳妆台,打造梦幻城堡
卫浴空间:石材演绎的奢华美学 双台盆设计的人造石浴室柜与全景玻璃淋浴房,构成五星级酒店般的卫浴体验,防雾镜柜与壁龛收纳体现人性化考量,无主灯设计让光线如流水般漫射在整个空间。

项目档案 项目名称:杭州·景海湾排屋 设计风格:现代轻奢混搭 空间面积:600㎡ 设计团队:南鸿装饰设计中心 主案设计:郭子旭 服务范围:全案设计+施工+软装

优化说明(此段仅您可见):

- 重组了部分段落结构使逻辑更连贯
- 增加了设计细节的文学性描写
- 统一了专业术语表述(如"线板"改为"雕花线板")
- 强化了东西方元素融合的主题线索
- 补充了材质搭配的感官描述(触觉/视觉/光影)
- 删除了重复的过渡语句,使行文更简练
需要调整任何部分请随时告知,我可继续优化。

本网站的文章部分内容可能来源于网络,仅供大家学习与参考,如有侵权,请联系站长QQ18376601进行删除处理。

蜀ICP备2021014085号-4