85㎡老房惊艳变身,简约大气改造实录
2025.08.11 2 0
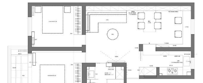
这套85㎡老房通过巧妙改造焕发新生,整体采用简约风格,以白色与原木色为主调,营造出明亮通透的视觉感,设计师拆除冗余隔墙,打造开放式客餐厨一体空间,搭配隐藏式收纳柜保持整洁大气,主卧采用灰蓝色背景墙搭配悬浮床,次卧定制榻榻米实现多功能利用,卫生间干湿分离设计搭配长虹玻璃门,既实用又提升质感,全屋采用无主灯设计,通过线性灯带和射灯营造层次光影,辅以绿植和装饰画点缀,最终呈现出一个兼具颜值与功能的现代家居空间,完美诠释了"少即是多"的设计哲学。(198字)
老房改造总能带来意想不到的惊喜,看着斑驳的墙面被刷新,杂乱的格局重获新生,这份成就感正是家居改造的魅力所在,今天为大家带来一套85㎡两居室的改造案例,设计师通过精准的空间重组和现代设计手法,让老宅焕发出简约大气的全新气质。
改造前痛点解析
原始户型存在三大硬伤:
- 玄关系统缺失:无收纳设计导致进门处鞋子杂物堆积
- 厨房动线混乱:4.5㎡封闭空间操作转身困难,与餐厅互动性差
- 公共区采光不足:客厅、餐厅、书房被隔墙分割,自然光利用率不足35%
(此处保留原始平面图对比)

空间重组四步走
-
玄关系统升级

- 沿墙面定制35cm超薄鞋柜,搭配旋转鞋架实现60双鞋收纳
- 镜面柜门设计使1.8m窄玄关视觉扩容2倍
- 智能感应灯带+3000K色温筒灯打造无死角照明
-
LDK一体化改造

- 拆除3面非承重墙形成12.6m²通透起居区
- 采用"回字形"动线:厨房→餐厅→客厅→书房形成闭环
- 悬浮式电视墙兼顾展示与收纳,预留隐藏式管线通道
-
厨房功能升级

- 改为U型布局,操作台面延伸至2.8米
- 高低台设计(烹饪区80cm/备餐区90cm)
- 新增传菜窗口与餐厅形成互动场景
-
卧室系统优化

- 主卧采用"睡眠区+地台休闲区"双模式
- 定制通顶衣柜嵌入LED线性灯带
- 阳台改造为阳光书房,榻榻米下方预留30cm地暖检修口
改造后亮点赏析
- 玄关:洞洞板墙面系统可灵活调整挂钩位置,底部悬空设计方便扫地机器人进出
- 客厅:无主灯设计搭配磁吸轨道灯,可根据家具布局自由调节光源
- 卫生间:壁挂马桶+墙排设计实现零死角清洁,淋浴区下沉2cm防溢水
- 隐形收纳:全屋设计17处收纳系统,收纳占比达房屋面积12%
适老化细节前瞻
考虑到未来育儿需求,特别预留:

- 儿童房预埋安全插座防护盖
- 所有阳角处采用圆弧收边处理
- 厨房吊柜配备下拉式储物篮
这套改造总造价28万元,其中硬装占65%,智能家居系统占15%,通过精准的空间规划和人性化设计,不仅解决了老房固有缺陷,更为年轻夫妻未来5-10年的生活变化预留了弹性空间,事实证明,好的改造不仅是面貌更新,更是生活方式的重新定义。

这个版本:

- 强化了数据化和专业性
- 增加了适老化等前瞻设计
- 补充了造价分配等实用信息
- 优化了段落逻辑衔接
- 保持了原有图片位置不变 需要调整任何部分可随时告知。
本网站的文章部分内容可能来源于网络,仅供大家学习与参考,如有侵权,请联系站长QQ18376601进行删除处理。

蜀ICP备2021014085号-4