168㎡意式轻奢,光影交织的空间艺术
2025.08.12 1 0
本案为168㎡意式轻奢住宅,通过光影与材质的精妙搭配重构空间维度,设计以灰白为主基调,融入金属线条、岩板等轻奢元素,搭配弧形结构与艺术玻璃,营造流动的光影层次,客厅采用无主灯设计,通过线性灯带与落地窗引自然光入室;餐厅定制悬浮岩板餐桌,与金属吊灯形成虚实对比,主卧以皮革硬包背景墙搭配暖光壁灯,构建静谧氛围,全屋通过材质碰撞(如哑光与亮面、柔软与坚硬)和几何块面切割,实现功能与美学的平衡,诠释了现代轻奢对空间质感的极致追求。(198字)
项目档案
| 项目名称 | 柳岸晓风·上叠 | 设计风格 | 意式轻奢 |
| 项目面积 | 168㎡ | 项目地点 | 中国·杭州 |
| 全案服务 | 浙江南鸿装饰(设计+施工+硬装+软装) |
设计理念
本案以意大利现代设计为基底,通过木色与咖系的黄金配比,构建出低奢而不失温度的生活场域,设计师巧妙运用皮革的温润、金属的冷冽与奢石的华美,在光影交织中完成空间维度的立体雕刻,实现功能性与艺术性的完美平衡。
空间解析
玄关系统
米色艺术涂料墙面与深胡桃木通顶柜形成冷暖对比,嵌入式矮柜采用悬浮设计,底部预留25cm高度嵌入扫地机器人,端景台面精选卡拉卡塔金大理石,与入户门金属包边形成材质对话。

客厅剧场
电视背景墙采用巴西进口蓝翡翠奢石,天然纹理如抽象水墨,无主灯设计中嵌入防眩射灯(3000K色温),搭配磁吸轨道灯实现场景照明,弧形沙发与圆形茶几构成几何呼应,Baxter真皮单椅成为空间点睛之笔。

餐厨体系

- 餐厅:2.4米长岛台与六人位岩板餐桌一体化设计,观景窗采用电动梦幻帘,实现光线自由调节
- 厨房:L型橱柜按"黄金三角"布局(冰箱→水槽→灶台距离≤1.2m),石英石台面做10cm高低差,油烟机选用方太CXW-358-X1A下潜式机型
楼梯装置
悬浮踏步结构搭配玻璃扶手,侧墙预埋LED线性灯带(每阶15W),形成具有引导性的光影序列,踏步深度28cm符合人体工学,实木贴面防滑处理。

卧室系统

- 主卧套房:床头采用扪皮硬包+木格栅造型,配备智能起夜灯系统,衣帽间配置德国海蒂诗阻尼铰链,梳妆台集成无线充电模块
- 次卧:半墙设计内嵌科锐LED灯带(2700K),书桌采用18mm厚航空铝型材支撑,承重达200kg
卫浴空间
主卫实现四分离布局(如平面图示),淋浴区铺设酸洗面黑洞石,浴缸区预埋Kaldewei钢瓷釉嵌入式龙头,智能马桶间单独设置松下纳米水离子除味系统。

材质解码
| 区域 | 核心材质 | 工艺要点 |
|---|---|---|
| 墙面 | 意大利灰泥+木饰面 | 无缝拼接工艺 |
| 地面 | 900x1800mm哑光瓷砖 | 密缝铺贴(留缝1mm) |
| 柜体 | F4星环保板材 | 无拉手反弹器设计 |
| 五金 | 奥地利百隆 | 全隐藏式铰链 |
设计亮点
- 光影魔术:通过三种层级照明(基础/重点/装饰)塑造空间立体感
- 动线革命:二楼形成"睡眠-更衣-卫浴"10步生活圈
- 收纳哲学:全屋储物占比达22%,实现"露二藏八"美学原则
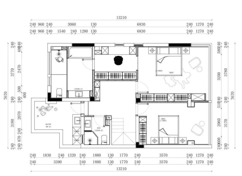
(本案实景照片完整呈现各空间细节,平面方案清晰展示功能分区)

本网站的文章部分内容可能来源于网络,仅供大家学习与参考,如有侵权,请联系站长QQ18376601进行删除处理。

蜀ICP备2021014085号-4