83㎡侘寂风家居,返璞归真的美学让人心动
2025.08.14 1 0
这套83㎡的侘寂风住宅完美诠释了"不完美的美学",以返璞归真的设计令人心动,空间采用天然微水泥打造斑驳肌理,搭配原木、藤编等自然材质,营造出质朴的岁月痕迹,低饱和的米灰色系奠定静谧基调,弧形线条弱化空间棱角,手工陶器与枯枝造景点缀出禅意,设计师刻意保留材料的残缺感,如未抛光的木纹、粗陶的裂纹,在留白中传递"陋外慧中"的哲学,全屋无主灯设计搭配隐藏式收纳,让侘寂美学与现代功能和谐共存,最终呈现出一个能让灵魂休憩的诗意栖居地。(198字)
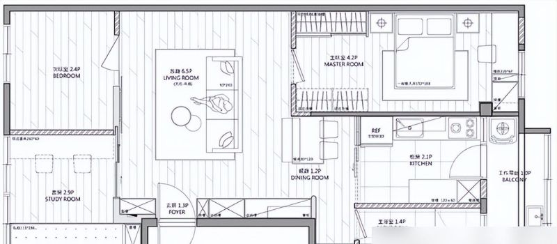
侘寂风最动人的特质,从来不是将居所打造成样板间般的"完美无缺",而是让时光的印记成为家中"会呼吸的风景"——这套历经40年沉淀的老屋,墙面刻意保留的原始肌理与凹凸纹路,反而成了最具叙事感的装饰,曾几何时我们执着于墙面的极致光滑,如今却在这份带着手作温度的粗粝感中,找到了比标准化乳胶漆更令人安心的存在,原来真正的家居美学,恰恰藏在这些"不完美的完美"里。 老宅常见的采光不足、格局逼仄问题,在这里被巧妙化解:取代厚重隔墙的口字框玻璃门,让阳光如溪流般倾泻入客厅;将闲置的餐厅空间划部分给局促的厨房,并以格栅玻璃门作柔性分隔——既维持了视觉通透性,又有效阻隔油烟扩散,这种空间重构的智慧启示我们:解决户型痛点未必需要扩充面积,像重新分配蛋糕的切块比例,往往能收获更舒适的生活动线。
入户无独立玄关的难题,通过双侧定制鞋柜与收纳柜的组合迎刃而解,设计师用耐磨地砖与木地板的材质过渡,既满足落尘区的实用需求,又避免了生硬的空间划分,电视墙的非常规布局更显巧思——悬挂于次卧与书房隔墙的电视机,既节省空间又保障了采光通透,书房设计尤为精妙:可隐藏的轨道滑门保持视觉整洁,架高榻榻米地台实现阅读、茶叙、客卧三重功能,这种"一物多用"的设计哲学,正是小户型空间价值的极致演绎。
【此处保留原图2】

材质搭配彰显侘寂美学的精髓:特殊涂料与核桃木皮餐边柜的组合,犹如粗陶茶杯邂逅陈年普洱,随时间流逝愈发醇厚温润,餐边柜侧面的圆弧处理,将建筑原有的尖角转化为柔和的曲线,这种"以柔克刚"的细节,正是家居设计中最动人的温柔注解。

卧室延续整体调性:隐形门设计、通铺木地板、无过门石的流畅衔接,配合整墙核桃木皮与隐藏灯带,在暖光烘托下营造出令人安眠的木质香氛空间,相比浮华的背景墙,这种回归本真的设计更能抚慰身心。

【此处保留原图3】

卫生间灰泥色洗手台与白色马赛克瓷砖的碰撞,复刻出旧时光的复古韵味,墙排式管道设计将现代功能完美隐藏,诠释了侘寂风"藏巧于拙"的智慧,真正的侘寂美学绝非刻意做旧,而是通过原始肌理、岁月痕迹与通透格局的有机融合,让空间焕发"活"的温度——如同中年人褪去浮华后,更懂棉麻质地的舒适真谛。

【此处保留原图4-18】

看腻了网红装修的精致套路,这种"粗粝中见温暖"的侘寂风反而直击心灵——因为它不为炫耀而生,只为居住而存在,这套83㎡老宅没有昂贵材料的堆砌,却将生活本真揉进了每道肌理、每个角落,当家居设计卸下伪装,展露出最质朴的样貌时,那份触动心灵的力量,或许就是侘寂风让我们心驰神往的真正原因。

本网站的文章部分内容可能来源于网络,仅供大家学习与参考,如有侵权,请联系站长QQ18376601进行删除处理。

蜀ICP备2021014085号-4