长沙御湖印200㎡新中式风设计惊艳亮相,网友直呼‘哇塞’三连!
2025.08.16 2 0
长沙御湖印200㎡+新中式大宅以现代手法重构东方美学,凭借"哇塞级"设计引发热议,空间以胡桃木色为主调,搭配哑光黑金属与天然石材,营造沉稳雅致的氛围,客厅采用对称式布局,山水纹大理石背景墙与镂空木质屏风形成虚实对比,落地窗引入自然光影,餐厅延续木质格栅元素,圆形吊顶呼应中式团圆理念,定制餐具柜兼具收纳与展示功能,主卧以低饱和度色彩为主,床头水墨画与简约线条床品相得益彰,衣帽间采用玻璃门提升通透感,设计师巧妙运用"框景"手法,在玄关、过道等区域打造微型景观,将茶室与书房功能复合化,满足现代生活需求的同时,通过材质碰撞与留白手法,实现传统意境与现代舒适度的完美平衡。
设计亮点速览
- 项目地址:长沙·御湖印小区(期房)
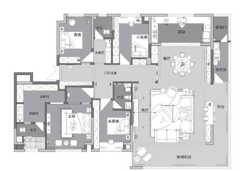
- 设计面积:200㎡+
- 空间格局:4房2厅+独立洗衣房
- 设计团队:鲁宾设计
- 造价参考:半包1100元/㎡
户型改造解析
原始户型为开放式框架结构,砌墙改造空间达35%,虽增加装修预算,却为设计师提供了充分的创作自由度,通过精准的空间规划,实现了:
- 主卧豪华套间(含独立衣帽间)
- 多功能客房(兼容未来二胎儿童房)
- 6㎡独立洗衣房(原阳台改造)
- 全屋动静分区优化
空间细节解读
入户玄关
浅灰基调搭配深胡桃木格栅,玄关柜采用"七分藏三分露"设计:

- 底部悬空收纳常穿鞋
- 中部展示格配山水瓷盘
- 顶部收纳换季物品
隐形灯带与圆形壁灯形成层次照明,实现归家仪式感与实用性的平衡。
客厅
突破传统中式对称布局,采用"L型沙发+单椅"的现代组合:

- 背景墙选用仿宣纸纹理岩板
- 定制铜件屏风作空间软隔断
- 智能调光系统满足会客/观影不同场景
茶几选用可升降设计,暗藏茶海功能,满足主人茶道爱好。
餐厨系统
餐厅:

- 直径1.2m的转盘圆桌,可扩展至8人位
- 餐边柜集成恒温酒柜与中式点心展示区
厨房: - 高低台面设计(炒菜区80cm/备餐区90cm)
- 吊柜底部加装感应灯带
- 烟机选用下潜式侧吸款,完美融入吊柜
卧室体系
主卧套间:

- 床背景采用蚕丝手绘壁布
- 飘窗改造为可升降茶台
- 衣帽间配备旋转镜柜+首饰保险柜
长辈房: - 全屋无高差地面
- 床头安装紧急呼叫按钮
- 衣柜增加下拉式挂衣杆
儿童房: - 可变形书桌(现长1.2m/可延展至1.8m)
- 墙面预留磁性黑板漆区域
特色细节

- 全屋采用"回"字形吊顶暗藏新风系统
- 门窗套线改良传统45°角拼接工艺
- 卫浴间配备石材防滑槽和壁龛收纳
这套新中式设计通过现代材质演绎传统元素,如客厅的金属屏风替代传统木质隔断,厨房的岩板纹路呼应山水意境,每个空间都暗藏符合当代生活习惯的巧思,实现"形简意丰"的居住体验。

(注:文中所有功能设计均根据开发商提供的建筑图纸完成,实际落地需结合交房后的现场复核)

本网站的文章部分内容可能来源于网络,仅供大家学习与参考,如有侵权,请联系站长QQ18376601进行删除处理。

蜀ICP备2021014085号-4