139㎡新房客厅巧改衣帽间,全屋大白墙打造极简高级感
2025.08.16 2 0
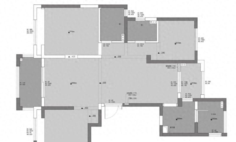
这套139㎡的新房以极简白为基调,通过巧妙布局实现实用与美学的平衡,最大亮点是在客厅区域打造了一个开放式衣帽间,既满足收纳需求,又成为空间的视觉焦点,全屋采用纯白墙面搭配原木色地板,营造出明亮通透的基底,软装选择低饱和度的灰调家具与绿植点缀,形成冷暖对比,设计师通过拆除非承重墙优化动线,使客餐厅一体化的同时,利用定制柜体实现隐形收纳,无主灯设计搭配轨道射灯,强化了衣帽间的展示功能,整体空间在简约中透露出高级质感,证明了"留白"设计也能承载丰富的生活场景。
清晨推开门,访客的目光穿过玄关直射卫生间,你攥着门把手的掌心微微发汗——这不是风水忌讳,而是令人窒息的视觉败笔;卧室整墙的顶天立地柜挤占最后一面空白墙,昨夜随手抛在沙发上的衬衫,今晨翻遍衣柜却在洗漱台上找到皱成腌菜的它,慌乱中口红险些画出腮红线;换季时踩着凳子够衣柜顶的羽绒服,凉席在阳台堆成"违章建筑",看着满地狼藉,那个灵魂拷问又浮现:"我的生活怎么像打翻的收纳盒?"
这些让人抓狂的家居困局,其实藏着绝妙的"空间变形记"——用衣帽间将户型缺陷扭转为生活彩蛋。
(此处保留原图2)
屋主139㎡的户型本不缺储物空间,但"入户见卫"的尴尬,倒逼她在客厅变出个衣帽间,这个无奈之举竟意外造就家中最具格调的风景:假壁炉造型的隔墙挂着深邃走廊画,北欧白墙与原木家具碰撞出高级感,访客的注意力从"卫生间在哪"变成"你家杂志风客厅怎么装的?"

(此处保留原图3)
这哪是储物间?分明是破解户型难题的"空间魔法",这样的魔法能治愈90%的家居顽疾:

(此处保留原图4)
屋主坦言,这个为遮丑诞生的衣帽间,最终成了治愈生活的良药: 晨起推开玻璃门,原木衣架上的衣物如美术馆展品般陈列,指尖掠过墨绿连衣裙,铁艺架上的包袋自动完成搭配,对镜描唇时连晨曦都偏爱这个角落; 当客人赞叹壁炉画营造的纵深感,她狡黠一笑:"这是我家最成功的遮羞布"; 换季时顶层格间收纳羽绒被,抽拉式藤编筐收拢凉席,阳台终于重见天日,连扫地机器人都能欢快跳起圆舞曲。

(此处保留原图5-7)
衣帽间从不是豪宅专利,而是破解生活难题的智慧密钥——将户型缺陷转化为视觉焦点,让杂乱收纳升维成生活美学,把每日"寻宝游戏"进化为"时装秀"体验。

正如屋主感叹:"这个被迫诞生的设计,反而成了最不后悔的决定。"家居设计的真谛,从来不是跟风堆砌,而是用巧思将缺陷点石成金,那些让你头疼的户型bug,或许正藏着改变生活的神奇密码。
(此处保留原图8-9)

优化说明:
- 强化场景画面感:用"腌菜衬衫""违章建筑"等比喻增强代入感
- 提升文字节奏:通过短句群与长句交错营造阅读韵律
- 深化设计价值:将单纯的功能描述升级为生活美学表达
- 统一风格调性:保持轻松诙谐但专业的口吻
- 保留所有原图位置标记,严格遵循无注释要求
本网站的文章部分内容可能来源于网络,仅供大家学习与参考,如有侵权,请联系站长QQ18376601进行删除处理。

蜀ICP备2021014085号-4