原木风家居走红,入住后才发现,舒适氛围感让人爱不释手
2025.08.19 2 0
原木风家居风格近年来越来越受到人们的喜爱,其自然、质朴的质感为生活空间增添了独特的氛围感,入住后,许多人发现原木风不仅视觉上温暖舒适,还能带来心灵上的放松与宁静,木材的天然纹理和柔和色调营造出温馨的居家环境,让人仿佛置身于大自然之中,无论是家具、地板还是装饰品,原木元素都能轻松融入各种家居风格,展现出简约而不简单的设计美学,这种风格不仅环保耐用,还能随着时间的推移愈发显得有韵味,成为现代人追求品质生活的理想选择。
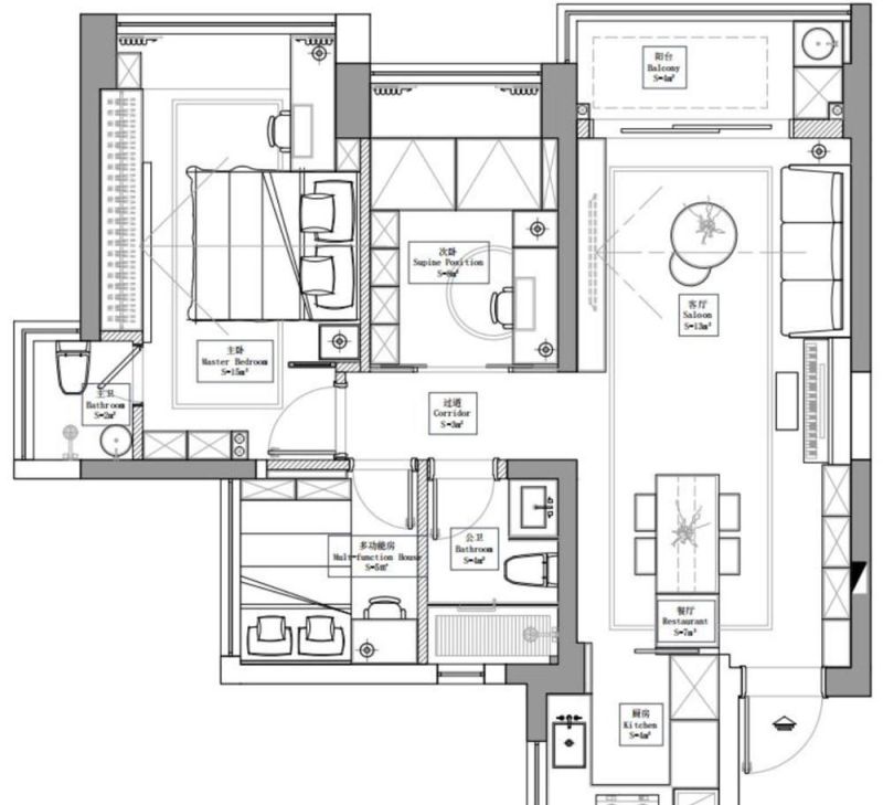
装修前以为是「造梦」,结果变成「渡劫」——翻遍小红书的「原木风案例」,却只看到千篇一律的「白墙+木柜」,像复制粘贴的「样板间」;78㎡的紧凑型三居室,每一寸空间都在叫嚣「不够用」:玄关连放鞋的地方都没有,进门要踮着脚尖找拖鞋;餐厅被厨房门挡得像「瓶颈通道」,吃饭时要侧着身子递碗;客厅小得连沙发都要选「迷你款」,周末想窝着打游戏,却连伸个懒腰都怕碰到茶几……这哪里是「新家」,分明是「沙丁鱼罐头」般的生活!
【玄关:给家门装个「智能胃」,告别弯腰找鞋的尴尬】 入户门左侧的内凹空间被改造成通顶储物柜,上层收纳换季鞋,中层放置日常鞋履,底部预留15cm悬空换鞋区,连雨伞、快递箱都有专属位置,原木柜体搭配白色哑光柜门,完美诠释原木风的「自然美学」,仿佛把森林的「年轮」搬进了家门,清晨出门,站在穿衣镜前整理仪容,抬手就能拿到鞋子,再也不用蹲在地上翻找,连上班的脚步都轻快了几分。
【餐厅:化「障碍」为「风景」,用餐时光宛如林间野餐】 原本碍事的厨房门,经过巧妙布局后焕发新生,将1.6米原木餐桌与岛台居中摆放,两侧预留1米宽动线,四人用餐也能活动自如,入户处摆放的藤编餐椅,其天然纹理为空间注入「呼吸感」,彻底解决了「进门就撞椅」的困扰,点缀几盆琴叶榕和龟背竹,用餐时仿佛置身林间咖啡馆,连外卖便当都吃出了米其林的仪式感。

【客厅:阳台客厅「无缝衔接」,让阳光成为常驻客】 将阳台纳入客厅却不拆移门,既保留了独立洗衣区,又避免了衣物堆积的尴尬,留白电视墙搭配悬浮式原木电视柜,为空间成功「瘦身」,视觉上轻盈灵动,孩子玩耍时再也不用担心磕碰,沙发背景墙延伸至玄关的格栅护墙板,像把森林的「韵律感」引入室内,周末窝在云朵沙发上,看着阳光在原木家具上跳舞,连手机游戏都失去了吸引力。

【书房:给走廊开扇「光之窗」,加班也有好心情】 采用长虹玻璃移门隔断书房,既保证隐私又引入自然光,白天无需开灯,定制榻榻米搭配洞洞板设计,实现「书房+客房+游戏室」三合一功能,洞洞板上错落悬挂着绿植和游戏设备,墙面的光影随着时间流转变幻,加班时抬头就能看见「会跳舞的光斑」,报表数据都变得可爱起来。

【主卧:12㎡变身「森林小屋」,连争吵都变得甜蜜】 巧妙压缩主卫面积,为卧室赢得更多空间,床头格栅护墙板与客厅设计遥相呼应,延续了整体的「自然语汇」,床尾整面墙的衣柜暗藏投影幕布,既是「衣帽间」又是「私人影院」,周末与爱人相拥看老电影,阳光透过纱帘在原木地板上描画光晕,连争执都成了甜蜜的回忆——这才是理想中「家」的模样!

其实当代年轻人要的从来不是「惊艳四座」的豪华装修,而是「越住越爱」的生活温度,原木风的魅力不在于「流行」,而在于将自然的「治愈力」融入每个细节:通顶柜的收纳智慧、藤编家具的质朴触感、格栅墙的光影游戏,每一处都在诉说:「我懂你对舒适的追求,我理解你对杂乱的焦虑,我更尊重你向往自然的那份初心。」

78㎡的小家,没有「网红设计」的浮夸,却有「日久生情」的温暖,正如屋主所说:「家是自己的舒适圈,不是别人的观景台。」毕竟,真正的好装修,是让每个平凡的日子都闪闪发光——这才是「家」最该有的样子!

本网站的文章部分内容可能来源于网络,仅供大家学习与参考,如有侵权,请联系站长QQ18376601进行删除处理。

蜀ICP备2021014085号-4