轻奢法式装修,用色彩美学点亮品质生活
2025.08.27 1 0
【法式轻奢风装修:用色彩点亮生活之美】 ,法式轻奢风格以优雅与精致著称,通过巧妙的色彩搭配为家居注入灵魂,经典的奶油白、浅灰与香槟金奠定低调奢华的基调,局部点缀墨绿、勃艮第红或雾霾蓝提升空间层次感,金属线条与丝绒材质的碰撞更添高级感,设计师建议采用"70%主色调+20%辅助色+10%跳色"的黄金比例,既能保持整体和谐,又能通过艺术挂画、花艺或灯具打造视觉焦点,这种风格弱化了传统法式的繁复,融入现代简约元素,让空间在浪漫与实用间达到平衡,完美诠释"少即是多"的美学理念,让每一天都充满仪式感。
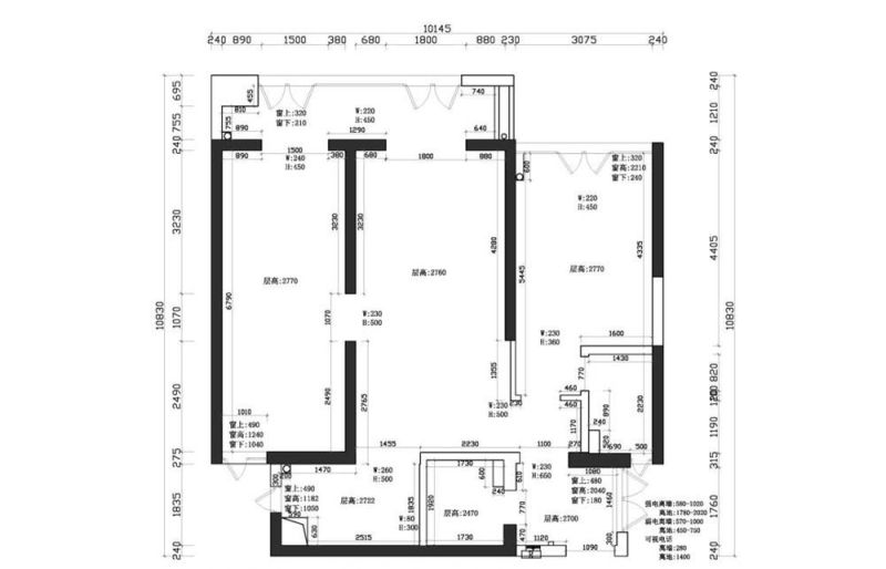
每天推开家门,是否总被这些场景暴击?玄关沦为"鞋类展览馆",次卧在"空旷"与"逼仄"间反复横跳,客厅配色堪比调色盘事故现场,卧室衣柜上演"火山喷发"......当生活空间变成烦恼源头,这套武汉新婚房的改造方案或许能给你答案!
空间魔术:从混乱到优雅的变形记
原始户型虽方正却暗藏浪费:

- 玄关新增顶天立地鞋柜,容量堪比专业买手店
- 次卧巧用可变隔断,实现"客房+书房"双模式切换
- 厨房采用玻璃砖隔墙,既保持通透又阻隔油烟
- 扇形拱门成为空间焦点,让回家变成仪式感十足的"凡尔赛宫入场式"
色彩交响曲:高级感的秘密配方
客厅以莫兰迪色系为基调:

- 米白主沙发搭配灰蓝艺术挂画,如同打翻的调色盘
- 渐变灰地毯与水晶吊灯碰撞,营造"柔光滤镜"效果
- 儿童房薄荷绿墙面搭配云朵壁灯,打造童话式成长空间
餐厅上演"蒂芙尼早餐"剧场: - 郁金香圆桌配丝绒餐椅,餐具柜暗藏红酒恒温系统
- 墙面装饰画实为可触控的智能氛围灯面板
收纳黑科技:看得见的优雅,看不见的智慧
卧室暗藏玄机:

- 床箱配备德国海蒂诗轨道,轻松收纳8床被褥
- 飘窗改造为可升降梳妆台,镜后隐藏首饰保险柜
- 步入式衣帽间采用旋转衣架,3㎡实现10㎡收纳量
书房玩转空间魔法: - 书柜嵌入折叠床,秒变临时客房
- 悬浮书桌下方暗藏移动文件柜
光影诗人:24小时的美学剧本
白天是自然光的舞台:

- 阳光透过蕾丝纱帘,在鱼骨拼地板上画出光之轨迹
- 彩色玻璃隔断将彩虹折射进走廊
夜晚开启人造光盛宴: - 智能系统可切换"约会模式""影音模式""助眠模式"
- 墙角嵌入的月球灯会随脚步声渐亮
细节偏执狂:毫米级的浪漫

- 踢脚线内嵌LED灯带,夜间行走不磕碰
- 厨房吊柜配备下拉篮,1米6主妇也能轻松取物
- 卫浴镜面恒温除雾,边缘圆角经过人体工学测算
- 所有门把手都镀上玫瑰金,开合间皆是轻奢触感
这套住宅如同被施了空间伸展咒,在118㎡里装下巴黎左岸的优雅与武汉的烟火气,当每个清晨被阳光吻醒,每个夜晚在香薰中入眠,你会发现:所谓理想生活,不过是让每个平方厘米都忠于自己的审美与舒适。

本网站的文章部分内容可能来源于网络,仅供大家学习与参考,如有侵权,请联系站长QQ18376601进行删除处理。

蜀ICP备2021014085号-4