17.5万装80㎡北欧风,氛围感拉满!
2025.08.30 2 0
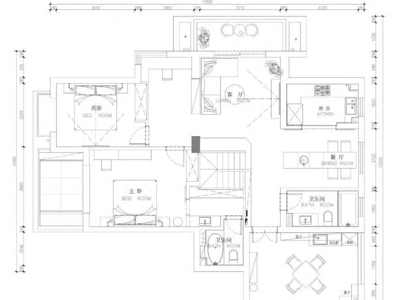
这套80㎡北欧风住宅以17.5万元预算打造出高颜值生活空间,通过低饱和度配色与原木元素完美诠释简约美学,客厅采用浅灰墙面搭配焦糖色皮质沙发,辅以藤编茶几与绿植营造自然氛围;餐厅定制卡座+圆桌组合节省空间,搭配抽象装饰画提升艺术感;卧室运用脏粉色背景墙与云朵灯饰打造温柔治愈系休憩区,全屋巧妙运用拱形门洞、通铺木地板等设计手法,在有限预算内实现功能性与美学的平衡,展现出"少即是多"的北欧设计精髓,最终呈现出一个兼具性价比与氛围感的理想家居范本。(198字)
北欧风堪称小户型的“颜值救星”,用十几万预算装出二三十万的质感,关键还经久耐看,这套案例最打动人的不是风格多惊艳,而是那种“把钱花在刀刃上”的智慧——硬装极简利落,大白墙搭配原木地板,像一张素净的画布;软装和定制柜才是灵魂,绿植点缀、挂画装饰,空间瞬间鲜活起来。
小户型两大痛点,一招破解
显小?
开放式客餐厅设计巧妙打通,视觉延伸感拉满,夫妻俩一个做饭、一个办公,抬眼就能互动,空间虽小却充满温情。

显乱?
电视柜、餐边柜全部做成顶天立地的定制款,连次卧床体都暗藏收纳,零碎杂物统统隐形,柜门一关,清爽利落,比华而不实的背景墙实用百倍。

低成本高情调,这些细节太绝了
- 阳台休闲角:玻璃门隔出的小天地,高脚桌椅配两盆天堂鸟,在家就能享受咖啡馆的慵懒氛围。
- 卫生间心机:小白砖打底,浴帘做隔断,藤编筐收纳,绿萝点缀,清爽好打理还省钱。
- 环保优先:硬装省下的预算,留给环保板材的定制柜和实木家具,E0级复合地板和实木餐桌的温润质感,是贴皮家具给不了的安心。
高级感的秘密:七分规划,三分“敢省”
很多人纠结“预算少装不出高级感”,其实关键在于取舍:

- 藏而不露:中央空调藏进吊顶,灯具选基础款,瓷砖只铺玄关和厨卫。
- 拒绝跟风:省掉复杂吊顶、网红爆款、华而不实的装饰,把预算留给真正提升生活效率的收纳和环保材质。
家的本质是生活,不是样板间,这套北欧风案例证明,只要规划得当,小户型也能住出高级感和舒适度。

本网站的文章部分内容可能来源于网络,仅供大家学习与参考,如有侵权,请联系站长QQ18376601进行删除处理。
已无下一篇

蜀ICP备2021014085号-4