美式风装修为何越来越火?装过的人都赞温馨有品位
2025.09.06 1 0
美式风格家居近年来越来越受欢迎,其温馨、有品位的特质吸引了众多装修者,只有真正体验过的人才能深刻感受到它带来的舒适与格调,这种风格融合了经典与现代元素,营造出既优雅又随性的生活氛围,成为许多人追求的理想家居选择。(100字)
若要将生活谱写成诗,美式风格的家居或许能给出完美答案,这种装修风格的每个角落都散发着自然与温暖的气息,即使空间不够规整完美,依然能让人感受到满满的幸福感。
本期为您呈现的是一套120平米的美式风格装修案例,它或许没有华丽奢华的表面,但处处流露的温馨质感却格外动人,这正是我特别想与大家分享的原因,篇幅不长,让我们一同细细品味这个充满温度的家。
设计概览
- 装修风格:美式风格
- 实际面积:120㎡
- 空间格局:3室2厅
- 设计师:千里莺
- 项目位置:黄冈三清国际
- 装修预算:16.28万元
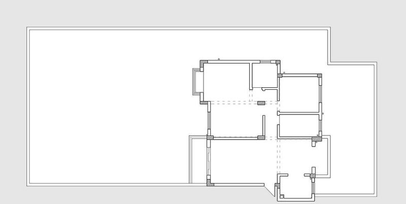
户型解析
这套位于三楼的住宅拥有一个超值惊喜——赠送的露台面积几乎是室内空间的1.5倍,户型本身南北通透,结构方正,且承重墙较少,为后期改造提供了充足的可能性。

平面布局优化
设计师通过巧妙改造,使空间利用更加合理高效:

- 扩建主卧、父母房、儿童房及厨房区域,大幅提升居住舒适度
- 利用户外空间打造两处阳光房,既增加了活动区域,又解决了晾晒需求
- 将鞋柜设计在客厅一侧,巧妙解决了入户无玄关的难题
玄关设计
设计师采用"隔断式"鞋柜方案,既保证了收纳功能,又维持了空间的通透感,对面墙面的全身镜设计,让家人每天都能以最佳状态出门。

客厅空间
客厅以浅松石绿为主色调,营造出清新自然的氛围,沙发墙与电视墙融入玫瑰金线条,为空间增添轻奢质感,多层次照明系统(主灯、射灯、灯带、壁灯)可根据不同场景灵活调节,满足各种氛围需求。

餐厅区域
扩建后的餐厅空间宽敞舒适,圆形餐桌完美适配三代同堂的家庭结构,营造出温馨的围餐氛围,多功能酒柜融合了实木与玻璃材质,既实用又美观,吊顶设计与客厅相呼应,暗藏灯带与玫瑰金线条相得益彰。

过渡空间
过道与玄关形成视觉呼应,尽头的装饰画成为点睛之笔,层次分明的吊顶设计让这个过渡区域也充满设计感。

主卧设计
以女性审美为主导的主卧室,床头壁画与整体风格完美融合,两侧到顶的浅松石绿护墙板延续了客厅的配色方案,无主灯设计让空间更显开阔,飘窗上的书柜设计则增添了一处惬意的阅读角落。

这套美式风格的家居案例充分展现了如何将实用功能与美学价值完美结合,创造出既舒适又有品位的居住环境,每一个细节都诉说着对生活的热爱,让家真正成为心灵的港湾。

本网站的文章部分内容可能来源于网络,仅供大家学习与参考,如有侵权,请联系站长QQ18376601进行删除处理。

蜀ICP备2021014085号-4