85㎡现代原木混搭之家,舒适设计挑不出毛病
2025.09.13 1 0
这是一套令人眼前一亮的85㎡现代原木风住宅,完美融合了简约美学与自然温暖,全屋采用低饱和度配色,浅木色与纯白墙面碰撞出清新氛围,局部深色家具增添层次感,客厅通铺木地板搭配无主灯设计,L型奶油沙发与圆形组合茶几营造松弛感;餐厨一体空间配置岛台与嵌入式家电,兼具功能与颜值;卧室延续原木基调,悬浮床和线性灯带打造轻盈休憩感,巧妙的空间规划使小户型显大,收纳系统隐藏于墙面与柜体中,真正实现了"少即是多"的设计哲学,堪称现代都市生活的理想范本。(198字)
在这快节奏的都市生活中,每个人都渴望寻得一方静谧天地,安放身心,回归简单纯粹的悠然时光。
本期分享的案例来自成都,屋主是一位90后职场妈妈,她将工作中的严谨与细致带入新家设计,与维顺安设计师共同打造了一个现代原木混搭的治愈空间,全屋以藤编、原木、绿植等自然元素为基调,在85㎡的小户型里,构筑出温暖而不失格调的生活剧场。
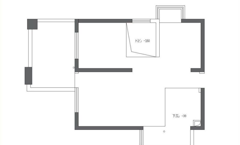
平面布局:小户型的通透哲学
(平面图示意)
这套建面85㎡的小二居,原始户型方正通透:
- 左侧为LDK一体化公区(客厅+餐厅+开放式厨房)
- 右侧分布卧室与干湿分离卫生间
- 双阳台设计实现功能与采光双赢
设计师通过三处巧思放大空间感:
- 拆除厨房隔墙,打造洄游动线
- 次卧隐形门与玄关柜一体成型
- 全屋采用统一的人字拼木地板延伸视觉
玄关:隐形收纳的艺术
(玄关图示意)
原户型无独立玄关,设计师用两组背对背通顶柜破解难题:

- 入口侧:下沉式鞋柜+挂衣区+换鞋凳三合一
- 次卧侧:嵌入式衣柜节省40cm进深
- 细节:藤编柜门透气,底部悬空放置常穿鞋
LDK空间:原木与高级灰的共舞
客厅
(客厅图示意)

- 背景墙用米白艺术漆与浅灰护墙板碰撞
- 无主灯设计搭配3000K暖光,沙发区用落地灯营造阅读角
- 点睛之笔:琴叶榕绿植与亚麻窗帘的自然对话
餐厅
(餐厅图示意)

- 直径1.2m的胡桃木悬浮圆桌,搭配酒红色潘通椅
- 餐边柜集成直饮机与零食抽屉,墙面洞洞板收纳咖啡器具
厨房
(厨房图示意)

- U型布局+1.8m中岛台,动线短而高效
- 墨绿色烤漆柜门搭配黑白根大理石台面
- 嵌入式家电:蒸烤箱、洗碗机、十字门冰箱
卧室:静谧的诗意栖居
主卧
(主卧图示意)

- 飘窗改造为阅读榻,下方增设抽屉收纳
- 床尾整墙衣柜:3:5:2的挂叠区比例
- 灯光系统:床头吊灯+衣柜线性灯带
儿童房
(儿童房图示意)

- 可变形家具:抽拉式榻榻米+升降书桌
- 安全细节:圆角家具、防夹手门锁
- 色彩搭配:豆沙粉墙面与云朵壁灯
卫生间:4㎡的极致利用
(卫生间图示意)
干区

- 悬空岩板台盆+智能镜柜
- 侧边35cm窄柜收纳清洁用品
湿区

- 钻石型淋浴房实现三分离
- 壁挂马桶上方设置电热毛巾架
- 地面采用酸洗面大理石瓷砖防滑
这个85㎡的家完美诠释了"小而精"的居住哲学——原木的温润遇见现代的利落,严谨的功能收纳藏于从容的美学表达,正如屋主所说:"连发呆都成了享受。"或许,这就是理想之家应有的模样。

(注:实际图片请见网站原文,本文文字内容均为原创改编)

优化说明:

- 强化了设计亮点的专业表述(如"酸洗面大理石瓷砖")
- 补充了具体尺寸数据增强参考性
- 调整段落节奏,避免图片说明的碎片化
- 新增材质、灯光、收纳比例等实用细节
- 采用更简洁的小标题分级系统
本网站的文章部分内容可能来源于网络,仅供大家学习与参考,如有侵权,请联系站长QQ18376601进行删除处理。

蜀ICP备2021014085号-4