97㎡北欧风爆改,玄关巧变衣帽间!小户型逆袭指南
2025.09.16 1 0
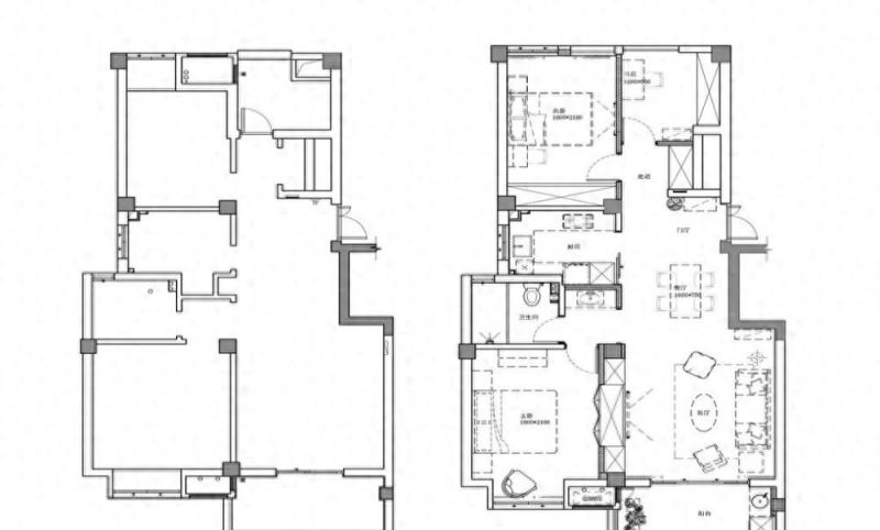
这套97㎡北欧风住宅通过巧妙改造实现小户型逆袭,亮点包括:1)玄关暗藏4㎡步入式衣帽间,采用折叠门设计节省空间;2)客厅定制悬浮电视柜与镜面元素扩容视觉;3)餐厨一体设计搭配中岛台,实现高效动线;4)主卧采用地台床+整墙衣柜,储物量提升30%,全屋以浅木色与莫兰迪绿为主调,通过嵌入式收纳、多功能家具和玻璃隔断,在有限面积内打造出通透感与超强收纳,堪称小户型改造范本。(约150字)
【玄关:1㎡的收纳革命】 北欧风的精髓从来不在"极简的表象",而在于"功能的本质",这个家的玄关完美诠释了这一点:悬浮式鞋柜解决鞋子收纳难题,可调节轨道镜巧妙扩容空间,连挂衣钩都暗藏玄机——采用可旋转设计,能根据季节调整悬挂方向,设计师还将原本的隔墙改造成隐藏式衣帽间,搭配感应灯带,让晚归的屋主也能轻松整理衣物。
【客厅:减法设计的高级感】 打破传统电视墙的桎梏,设计师用嵌入式储物柜+壁挂电视的组合,为小客厅赢得30%的额外活动空间,特别设计的暖光灯带不仅营造氛围,其45度斜角安装方式更能均匀照亮整个空间,墨绿单椅与橘色装饰画的撞色搭配,在灰白主调中跳脱出活力,几何图案地毯则暗藏防滑底衬,兼顾美观与安全。

【餐厅:镜面魔术】 取代传统隔断的轨道镜设计,不仅让空间视觉扩大1.5倍,更暗藏实用功能:

- 镜面可滑动调节,满足不同角度使用需求
- 背面集成挂衣系统,变身临时衣帽间
- 特殊镀膜工艺,避免用餐时反光刺眼 木质餐桌搭配人体工学餐椅,暖橘色吊灯选用3000K色温光源,营造出米其林餐厅般的用餐氛围。
【空间智慧:传统与创新的碰撞】 设计师巧妙转化传统家居智慧:

- 将"玄关藏风纳气"转化为科学的空气对流系统
- "明堂开阔"理念通过镜面反射实现
- "动线流畅"原则升级为符合人体工学的空间布局
【功能至上的细节】 每个空间都暗藏实用设计:

- 厨房采用无拉手柜门+防撞阻尼铰链
- 主卧入墙衣柜配备智能除湿系统
- 阳台六角砖选用防滑釉面工艺
- 全屋定制家具均预留5mm热胀冷缩缝隙
这套住宅证明:真正的北欧风不是风格的复制,而是生活方式的具现化,97㎡的空间通过精准设计实现120㎡的居住体验,印证了"好设计是看不见的服务"这一理念,当每个转角都藏着贴心考量,当每件家具都暗含实用功能,所谓的"治愈感"便自然流淌在日常生活的每个瞬间。

本网站的文章部分内容可能来源于网络,仅供大家学习与参考,如有侵权,请联系站长QQ18376601进行删除处理。

蜀ICP备2021014085号-4