定制餐边柜巧扩容,告别餐桌杂乱收纳无忧
2025.09.18 1 0
装修时定制餐边柜是提升收纳效率的实用选择,能有效解决餐桌杂乱问题,餐边柜可根据空间尺寸个性化设计,合理规划隔层、抽屉和开放格,分类收纳餐具、零食、小家电等物品,保持台面整洁,搭配玻璃柜门或隐藏式灯光,还能兼顾美观与实用性,避免客厅视觉拥挤,通过垂直空间利用,小户型也能实现扩容,同时减少清洁负担,让用餐区更清爽有序。(约150字)
在房屋装修过程中,合理定制柜体是提升居家收纳效率的关键,建议根据户型特点,在入户玄关配置多功能鞋柜,餐厅区域设计餐边柜,客厅选择兼具展示与储物功能的电视柜,需特别注意的是,柜体数量应与实际空间相匹配,避免过度堆砌影响动线流畅。
餐边柜:拯救餐桌凌乱的收纳神器
许多家庭因缺乏餐边柜或收纳柜,导致餐桌沦为杂物堆积区——水杯、电水壶、调味瓶等物品杂乱摆放,既影响用餐环境又降低生活品质,一套精心设计的餐边柜能从根本上解决这一问题。
餐边柜五大黄金设计法则

-
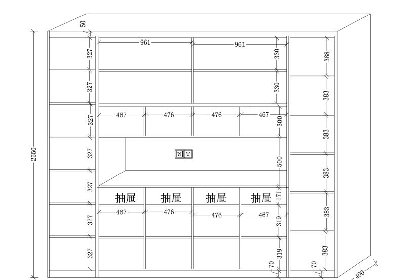
顶天立地式结构
采用通顶设计最大化垂直空间利用率,避免顶部积灰死角。 -
中空操作台面
保留50cm高度的开放区域,便于放置咖啡机、微波炉等常用小家电,同时可作为临时备餐区。
-
抽屉分层系统
建议配置3-5个抽屉,采用深浅分区的设计,分别收纳餐具、茶具、零食等不同品类物品。 -
嵌入式电源规划
提前预留2-3组五孔插座(建议距台面15cm),满足多功能料理机、即热饮水机等设备的用电需求。
-
智能照明方案
柜底加装LED灯带(色温3000K为佳),既可作为氛围照明,又能为夜间取物提供便利光源。
专业尺寸建议

- 柜体深度:38-42cm(兼顾收纳能力与空间舒适度)
- 操作台高度:85-90cm(略高于标准餐桌的75cm)
- 吊柜深度:30-35cm(避免碰头同时保证储物容量)
- 层板间距:25-30cm(适配常见小家电高度)
材质选择贴士
推荐采用防潮性佳的实木颗粒板(柜体)+钢化玻璃(柜门)的组合,既保证结构稳定性,又能通过透明柜门展示精美餐具,浅色系木纹搭配哑光金属拉手,能有效提升空间明亮度。
通过科学规划的餐边柜系统,不仅能保持餐桌整洁,更能将餐厅升级为多功能生活区,建议收藏本文作为装修参考,持续关注我们获取更多实用家居解决方案。

本网站的文章部分内容可能来源于网络,仅供大家学习与参考,如有侵权,请联系站长QQ18376601进行删除处理。

蜀ICP备2021014085号-4