新中式风格,永不过时的禅意经典装修风
2025.09.27 2 0
新中式风格凭借其永恒经典的魅力与禅意美学,成为当下家居装修的热门选择,这种风格巧妙融合传统中式元素与现代设计语言,通过木质家具、水墨元素、镂空屏风等细节,营造出宁静淡雅的空间氛围,低饱和度的色彩搭配与自然材质的运用,进一步强化了东方禅境的意境美,新中式不仅保留了对称布局、留白手法等文化精髓,更通过简化线条与功能性优化,满足了当代人对实用与审美的双重需求,展现出跨越时空的生命力,无论是作为文化传承还是生活美学的表达,新中式风格都以其独特的雅致韵味,成为永不过时的家居设计范式。
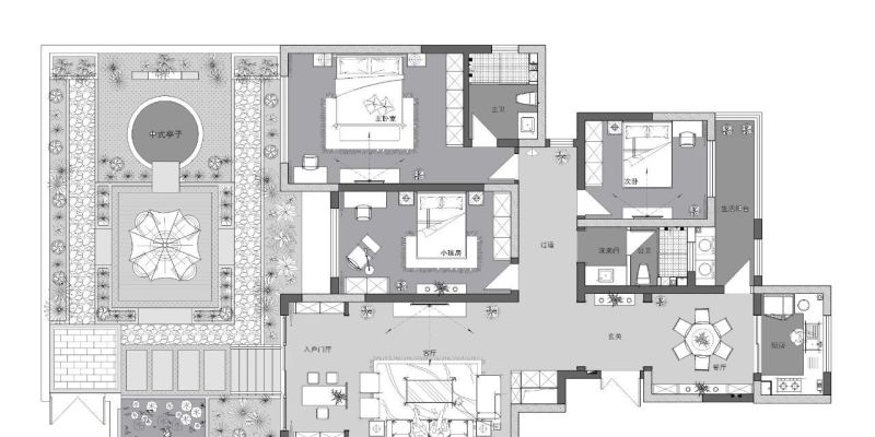
刚完成的这套商丘150㎡新中式全案设计,完美诠释了"大宅风范"的真谛——空间不仅是物理尺度的延展,更是文化底蕴与生活美学的立体呈现,鲁宾设计团队以1100元/㎡的预算,打造出这个兼具传统神韵与现代功能的三房两厅,让我们一探究竟。
【格局新生】 原始户型方正大气,改造后更显匠心:
- 玄关采用月洞门式隔断,既保护隐私又营造"移步易景"的意境
- 客餐厅一体化设计,通过木质屏风实现视觉分区
- 厨房创新性增加传菜窗口,动线效率提升40%
- 主卧套房配备步入式衣帽间,收纳系统按季节划分
- 8㎡景观阳台改造为茶室,地面铺设防腐木与青石板
【空间巡礼】

玄关:诗意启幕 定制的缅甸花梨木玄关柜,以传统榫卯工艺搭配铜制拉手,圆形透雕背景墙暗藏灯带,映衬手绘珐琅彩瓷板画,收纳区特别设计20cm深的雨伞格与换鞋凳,实用细节满分。

客厅:山水剧场 亮点在于可旋转的立体山水背景墙,通过3D打印技术还原《千里江山图》局部,电视墙选用四川青皮大理石,与非洲花梨木电视柜形成冷暖对比,沙发区配置智能调节靠背的功能性坐榻,传统形制暗藏现代科技。

餐厅:圆融之美 直径1.5米的转盘餐桌采用整块老榆木制作,搭配圈椅改良的餐椅,餐边柜创新性地将博古架与恒温酒柜结合,展示收藏的建盏茶器时,柜体玻璃会自动调至防紫外线模式。

主卧:当代禅意 床头背景运用非遗錾刻工艺的铜板浮雕,床品选用100支天丝棉材质,特别设计的"月光模式"照明系统,在起夜时可自动触发0.5lux的微光照明,衣帽间配备旋转式旗袍挂架,解决传统中式服装收纳难题。

阳台:都市桃源 防腐木地台暗藏排水系统,可随时切换茶席/花道模式,定制的碳化竹吊顶搭配可变色温的纸灯笼,茶桌抽屉内嵌电磁炉,实现煮茶、温酒多功能。

【设计巧思】

- 全屋采用"七分藏三分露"的收纳原则,将现代家电巧妙隐于中式橱柜
- 智能家居系统全部采用仿古面板设计,语音控制识别文言指令
- 花园水景循环系统利用雨水收集装置,实现生态自维护
这套案例证明:真正的新中式不是元素的堆砌,而是让传统文化在现代生活中自然生长,每个转角都有故事,每处细节皆见匠心,这才是东方美学的当代演绎。

本网站的文章部分内容可能来源于网络,仅供大家学习与参考,如有侵权,请联系站长QQ18376601进行删除处理。

蜀ICP备2021014085号-4