59㎡日系小户型改造指南,文艺小清新轻松get
2025.10.17 2 0
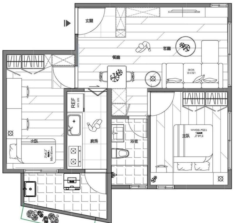
59㎡小户型通过日系文艺风设计,打造出清新舒适的居住空间,采用浅木色家具、白色墙面和简约线条,营造通透感;局部搭配绿植、棉麻布艺和藤编元素,增添自然气息,功能布局上,客餐厅一体化设计节省空间,定制榻榻米兼顾收纳与休闲,玻璃隔断保证采光,软装以低饱和度色彩为主,点缀少量手工艺品,避免杂乱,巧妙运用垂直空间和隐藏式收纳,保持视觉整洁,实现小户型的高效利用与美学平衡。
进门正对的长虹玻璃鞋柜隔断,简直是解决小户型两大痛点的神来之笔!既能收纳全家人的鞋子和日常杂物,又巧妙分隔了玄关与客厅空间,最令人惊喜的是,这种设计丝毫不阻挡自然光线——清晨阳光透过玻璃洒进来,玄关瞬间明亮如加了一层柔光滤镜,彻底告别传统小户型"进门见墙"的压抑感。
电视墙采用原木色与白色组合的定制柜,堪称小户型收纳的终极解决方案,深柜体完美隐藏路由器、零食罐等零碎物品;开放式台面则成为展示绿植和小摆件的舞台,既保持空间整洁,又增添生活气息。
客厅搭配抹茶绿布艺沙发,留白墙面与无主灯设计相得益彰,整个空间仿佛浸泡在温润的奶茶色调中,没有刺眼的顶灯干扰,夜晚窝在沙发追剧时,连手机都变得多余——这样的氛围感,简直让人沉醉。

餐厅设计更是将空间利用发挥到极致:靠墙摆放的原木餐桌椅为入户留出充足动线,避免开门撞椅的尴尬;嵌入式餐边柜不占额外空间,却能整齐收纳餐具、调料和各种零食,让餐桌永远保持清爽状态。

厨房与餐厅之间的长虹玻璃门堪称明智之选——有效阻隔油烟的同时,让自然光线自由穿透,再也不用担心做饭时餐厅变成"小黑屋",现在即使烹饪时间,用餐区依然明亮舒适,大大提升了就餐体验。

主卧的床头化妆台一体化设计,解决了小卧室的布局难题,这种巧思不仅节省了0.5㎡的宝贵空间,更让晨间护肤化妆流程变得无比顺畅,床尾的整面墙衣柜容量惊人,轻松收纳四季衣物、被褥甚至行李箱,彻底告别换季时的收纳烦恼。

次卧的地台+沙发床+书桌组合,完美诠释了小空间的"变形"哲学,平日是安静的书房,需要时秒变客房,真正实现了"一室多用",这种灵活多变的设计理念,让小户型的每一寸空间都物尽其用。

这个59㎡的日式小宅证明:好设计不在于面积大小,而在于如何将"实用"与"美感"完美融合,长虹玻璃的通透、无主灯照明的柔和、嵌入式柜体的高效,这些看似简单的设计语言,共同编织出一个既实用又温暖的生活空间。

我们选择小户型,追求的不正是这种踏实而精致的生活品质吗?那些华而不实的装饰造型,往往在新鲜感过后成为清洁负担,而这个案例告诉我们:把钱花在真正提升生活品质的设计上,才能打造出经得起时间考验的温馨之家。

现在再看这个59㎡的空间,哪里还觉得"小"?每一处设计都在诉说着生活的智慧——明亮的玄关、舒适的客厅、通透的餐厅、便捷的主卧、灵活的次卧,共同构成了一个让人流连忘返的温暖港湾,这不正是我们梦寐以求的理想家居吗?

本网站的文章部分内容可能来源于网络,仅供大家学习与参考,如有侵权,请联系站长QQ18376601进行删除处理。

蜀ICP备2021014085号-4