140㎡宋氏极简风,线条凝练演绎东方美学
2025.10.23 1 0
【140㎡宋氏美学住宅:极简线条中的东方韵味】这处140平方米的居所完美诠释了宋代美学的当代演绎,通过洗练的直线与温润的曲线交织,营造出"疏而不空"的意境空间,设计师摒弃繁复装饰,以檀木、宣纸、青瓷等传统材质构建骨架,搭配现代极简的灰白色调基底,在留白处暗藏宋代山水画的层次感,定制家具汲取宋式家具的挺拔比例,茶几与博古架以榫卯结构呈现几何美感,而亚麻屏风与枯枝造景则成为空间的情感注脚,实现"器以载道"的宋式生活哲学,全屋通过光线与材质的精妙调度,让现代功能需求与古典审美达成平衡,最终成就一个既能抚慰心灵、又充满文化张力的诗意栖居。
当快节奏的现代生活让人愈发向往诗意栖居,宋式美学的"简雅哲学"正成为当代家装最隽永的东方注脚,这套位于长沙的复式住宅,以《营造法式》的建构智慧为骨,以宋画《溪山清远》的意境为魂,在钢筋水泥的都市中构筑出一方"不下堂筵,坐穷泉壑"的雅致天地。
项目档案 风格定位:新宋式美学住宅
建筑面积:140㎡复式结构
设计团队:鲁宾设计事务所
单位造价:1100元/㎡
空间亮点:21处宋式细节转译

空间叙事

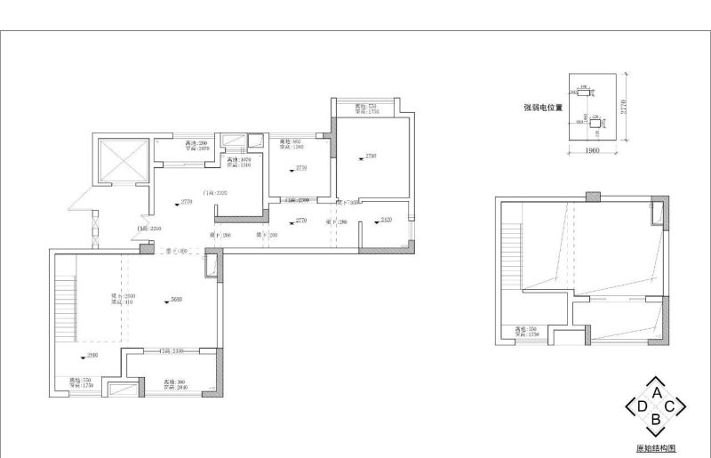
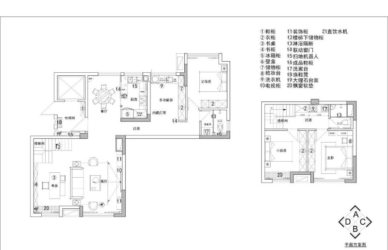
一层·流动的雅集 原始户型图中错落的梁柱结构,被巧妙转化为"随类赋形"的设计语言,客餐厨一体化布局延续了宋代"厅堂-轩廊"的空间序列,书房与客厅通过可开合的格栅门形成"隔而不断"的视觉关联,特别设计的楼梯下储物系统,暗合《燕几图》"器以载道"的收纳智慧。

二层·栖居的诗学 主卧采用"一榻清风"的极简布局,床头《千里江山图》局部烫金壁饰与藤编灯具形成材质对话,父母房飘窗参照宋画《槐荫消夏图》意境,设置可升降茶台,儿童房则通过模块化家具实现"成长性空间"的现代转译。

匠心细节

- 客厅:定制胡桃木书柜以"七朱八白"彩画比例分割,层板内嵌的LED灯带模拟《韩熙载夜宴图》烛光效果
- 餐厅:圆形餐桌取意《文会图》,藤编餐椅采用非遗余杭竹编工艺
- 厨房:吊柜底部的青瓷纹样玻璃,灵感来自汝窑开片冰裂纹
- 主卫:仿夯土墙面搭配定窑白瓷台盆,重现宋代"素瓷传静夜"的沐浴美学
设计哲思 在这个项目中,我们尝试用当代设计语言解构宋代美学基因:将《林泉高致》的"三远法"转化为空间层次,把《茶经》"精行俭德"精神物化为功能布局,当晨光透过格栅在实木地板上投下《早春图》般的斑驳光影,便是对"宋式生活美学"最生动的当代诠释。

本网站的文章部分内容可能来源于网络,仅供大家学习与参考,如有侵权,请联系站长QQ18376601进行删除处理。

蜀ICP备2021014085号-4