轻法式混搭中古风,御湖半岛102㎡把收纳变成艺术
2025.10.30 3 0
本案为御湖半岛102㎡住宅,设计师以轻法式混搭中古风为基调,巧妙平衡美学与功能,空间采用奶油白为主色,搭配弧形线条、雕花灯盘等法式元素,与中古家具的木质温润感形成碰撞,亮点在于将收纳系统艺术化处理:玄关弧形壁龛嵌入拱形镜面,餐边柜以玻璃门展示藏品,主卧衣柜通过镂空格栅营造光影层次,全屋定制柜体采用哑光烤漆与藤编材质,既满足储物需求又成为空间装饰,设计师通过微水泥地面通铺、局部水磨石点缀,串联起不同功能区,最终实现"收纳即装饰"的个性化居住体验。(198字)
本案呈现的是一套102㎡轻法式中古风住宅,设计师以奶油白为基调,巧妙融入黑色线条与温润木元素,通过弧形曲线与洞洞板的创意组合,打造出兼具复古韵味与现代功能性的灵动空间,硬装遵循"少即是多"的原则,在细节处精雕细琢,让中古美学在简约中自然流淌。
设计亮点
- 玄关下沉式花砖与客餐厅人字拼地板的弧形过渡
- 客厅洞洞板收纳系统与包豪斯家具的混搭
- 餐厨区"藏露有度"的复合型储物方案
- 卧室美式复古与东方禅意的碰撞融合
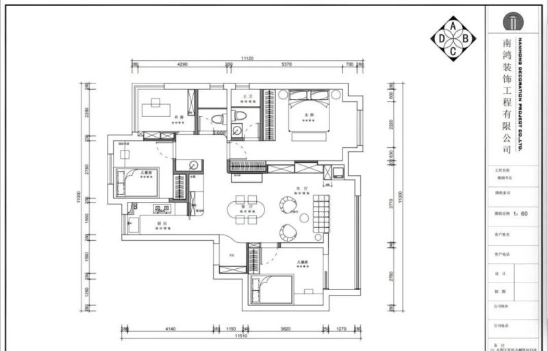
平面布局解析
▲ 原始户型为四室两厅结构,设计师通过三处关键改造提升空间价值:
- 拆除玄关隔墙,用弧形地砖拼接引导动线
- 客厅采用去电视化设计,定制整墙多功能收纳柜
- 书房采用移门+柜体一体化设计,节省过道空间
空间逐景
玄关
6㎡下沉区铺设几何拼花地砖,20cm高低差形成自然落尘区,弧线收边与人字拼地板无缝衔接,墙面洞洞板系统可自由调节挂钩位置,满足雨伞/钥匙/包袋的灵活收纳。

客厅
取消传统电视墙,定制3.6米通顶收纳柜:

- 左侧封闭柜门存放家庭档案
- 中部开放格展示收藏品
- 右侧洞洞板搭配层板组成"可生长"的收纳系统
家具选配体现混搭哲学:

- 豆腐块沙发(长2.4米,进深90cm)
- 1955年设计的包豪斯休闲椅复刻版
- 翡翠绿豆芽灯(高度可调1.2-1.5米)
餐厨区
1.8米黑色岩板餐桌搭配4把不同时期的中古餐椅,蚕丝吊灯距桌面75cm营造温馨光晕,餐边柜创新采用"三段式"设计:
上层:玻璃柜门展示精美器皿
中层:操作台面内置轨道插座
下层:藤编门板透气存酒

厨房采用"黄金三角"布局:

- 灶台区墙面内凹15cm做调味品壁龛
- 水槽区台面抬高10cm缓解腰部疲劳
- 冰箱侧板安装磁性收纳架
卧室
主卧背景墙采用美式线框造型,搭配:

- 玉石吊灯(直径25cm暖白光)
- 胡桃木斗柜(带防滑阻尼导轨)
- 亚麻材质窗帘(遮光率85%)
卫浴系统
干区亮点:

- 拱形镜柜(内部集成插座)
- 壁挂式牙膏收纳器
湿区细节: - 长条形地漏(长度60cm)
- 玻璃隔断预埋防爆膜
项目档案
项目地址:宁波·御湖半岛
建筑面积:102㎡(套内89㎡)
空间类型:四室两厅两卫
设计周期:35天
施工周期:98天
全案造价:28.6万(含软装)

设计机构:浙江南鸿装饰
设计理念:让功能收纳成为空间的艺术表达

本网站的文章部分内容可能来源于网络,仅供大家学习与参考,如有侵权,请联系站长QQ18376601进行删除处理。

蜀ICP备2021014085号-4