奶油法式私宅设计,巴黎浪漫融入生活日常
2025.11.01 2 0
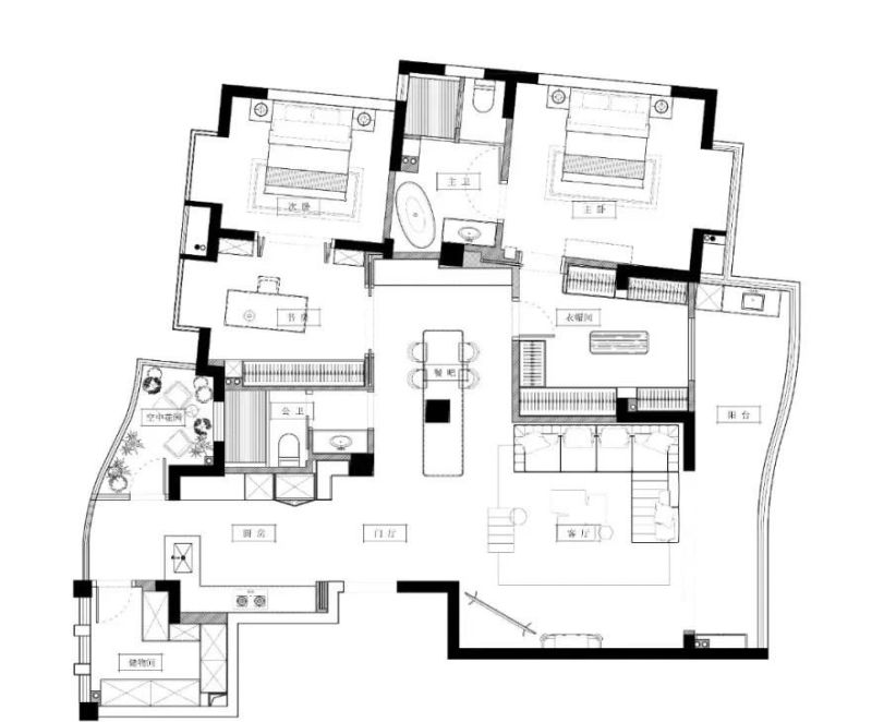
本案以"奶油法式"为设计主题,巧妙融合巴黎浪漫美学与实用主义,打造出优雅治愈的私宅空间,设计师采用低饱和度的奶油色系为基调,搭配雕花灯盘、人字拼木地板等经典法式元素,营造柔和慵懒的氛围,空间布局上突破传统,将客厅与开放式厨房连通,以弧形门洞和艺术玻璃实现视觉延伸,配以黄铜水晶吊灯与复古家具提升质感,卧室通过石膏线条与绒布软包床头塑造层次感,衣帽间采用玻璃柜门增强通透性,全屋在保留法式对称美学的同时,运用现代简约手法平衡繁复装饰,实现"浪漫不刻意,精致不做作"的生活意境,让巴黎左岸的艺术气息自然流淌于日常起居之中。(198字)
项目概况
浙江宁波 | 160㎡旧房 | 设计师:周王涛
设计亮点
-
空间重构
将传统老房改造为融合咖啡手作区、开放式轻食厨房及育儿预备空间的复合型居所,通过拆除隔墙实现LDK一体化布局,动线效率提升40%。
-
材质碰撞美学

- 墙面:微水泥与石膏线雕花形成肌理对比
- 地面:人字拼木地板与洞石茶几形成冷暖平衡
- 焦点设计:定制铜鎏金壁炉搭配电子雾化火焰,兼顾法式仪式感与安全性
- 色彩系统
以香草奶油白为基底(色号:Benjamin Moore OC-65),局部点缀勃艮第红(RAL 3002)与哑光黑,再现巴黎左岸咖啡馆的慵懒情调。
功能升级

- 厨房:增设嵌入式Miele咖啡机及隐藏式升降插座,中岛台面延伸出90cm早餐吧
- 主卧:预留可变形婴儿床位,衣柜内嵌折叠式尿布台
- 卫浴:采用3mm超白玻淋浴房,搭配汉斯格雅境雨花洒系统
软装精选

- 灯具:Baccarat水晶吊灯(客厅)、Tom Dixon熔岩壁灯(走廊)
- 家具:Ligne Roset Ploum沙发、USM Haller模块化边柜
北京150㎡精装房奶油法式焕新
项目概况
北京朝阳 | 150㎡三居 | 设计团队:赫兹设计

改造策略

- 硬装调整
- 拆除原精装房金属条吊顶,改用12cm石膏线装饰
- 全屋更换为18cm宽橡木鱼骨拼地板(表面OSMO木蜡油处理)
- 定制系统
- 餐边柜:藤编门板内嵌智能除湿模块,湿度恒定45%-55%
- 飘窗改造:增加电动升降茶台,底部预留宠物休憩区
- 灯光设计
采用3000K色温无主灯方案,轨道射灯(Ra≥95)重点照亮艺术品,搭配Flos IC系列壁灯营造氛围。
材质搭配表
| 区域 | 墙面 | 地面 | 重点材质 |
|-------|-------|-------|-------|
| 客厅 | 本杰明摩尔CC-40 | 橡木鱼骨拼 | 亚麻窗帘 |
| 主卧 | 硅藻泥艺术涂料 | 剑麻地毯 | 黄铜开关面板 |
| 卫浴 | 卡拉拉大理石 | 微水泥 | 电热毛巾架 |

智能家居

- 全屋接入摩根智能系统,支持语音控制窗帘/空调
- 厨房配备ASKO洗碗机+垃圾处理器联动系统
本网站的文章部分内容可能来源于网络,仅供大家学习与参考,如有侵权,请联系站长QQ18376601进行删除处理。

蜀ICP备2021014085号-4