50㎡小宅装美式风,老婆反对后直呼惊艳!
2025.11.08 2 0
一对夫妻在装修不到50㎡的小户型时产生分歧,妻子起初反对丈夫坚持的美式风格,担心空间显压抑,然而完工后效果令人惊喜——设计师巧妙运用浅色调、简约美式家具和开放式布局,既保留了美式风格的复古质感,又通过镜面、嵌入式收纳等设计增强空间感,最终小家呈现出温馨精致的氛围,妻子坦言“眼前一亮”,证明小户型与美式风格也能完美融合,案例引发网友热议,称其“打破传统观念,小空间也能装出高级感”。(字数:148)
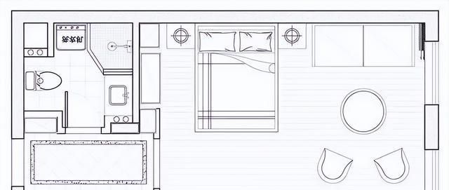
把厨房塞进玄关?这听起来像个装修段子,但北京一位业主真的把这个创意变成了现实,一套38㎡的老破小,经过设计师的巧妙改造,不仅实现了功能齐全的居住需求,还意外地呈现出精致的美式风格。
玄关变身迷你厨房
这套房子的原始布局相当局促:进门左手边是鞋柜,右手边现在变成了灶台区,设计师将玄关延长了60公分,硬是塞下了一个一字型迷你厨房,1.5米的台面刚好能放下砧板和iPad,让业主可以一边切菜一边追剧,省去了在客厅和厨房之间来回奔波的麻烦。
灶台对面是一组顶天立地的储物柜,电饭煲、空气炸锅、泡面等厨房用品都能完美收纳,柜门一关,美式风格的石膏线条依然优雅整洁,油烟味完全没有机会"串门"。
消失的客厅与变形家具
传统的客厅概念在这里被彻底颠覆,原来的"厅"被一张多功能变形餐桌一分为二:白天收起来是宽敞的过道,晚上拉出来就变成四人位的用餐区,桌面翻转后还能变身桌游台面。

沙发?直接取消!取而代之的是一张折叠沙发床,平时是猫咪的专属领地,客人来访时铺开就是一张舒适的客床,床头墙面的软包设计暗藏玄机——里面藏着一张可折叠书桌,展开后,腿部空间正好卡在两排衣柜之间,像极了火车上的小桌板,工作到深夜时,只需把电脑往里一推就能倒头就睡,连收拾桌子的步骤都省了。
极简美式的精髓
设计师对美式风格进行了极致简化,只保留了两个核心元素:细石膏线和雾霾蓝墙漆,传统的雕花、护墙板、壁炉等元素统统被舍弃,预算直接砍半。

吊顶只做了一圈18公分的小跌级,既隐藏了空调管线,又保住了宝贵的层高,当灯带亮起时,蓝色墙漆平整得像是被熨过一般,完全看不出这是90年代的砖混结构老房,正如设计师所说:"美式不是贴标签,而是'看起来贵',石膏线越细越显贵,颜色越少越显大,秘诀就这么简单。"
卫生间里的智慧收纳
洗衣机被巧妙地安置在卫生间干区,台面特意抬高30公分,下方空间正好容纳猫砂盆,连扫地机器人经过都不会被卡住,洗烘一体机45公分的厚度确保了门能完全打开,烘干的衣服可以直接扔到对面的衣柜,动线设计简洁到像是偷懒的产物。

针对有人担心的烘干效果问题,业主实测四件套50分钟就能完全烘干,而且噪音比空调外机还小,从未收到邻居的投诉。
隐形的空间魔法
最令人称奇的是厨房与卧室之间的隔断门设计,原本没有墙体的两个空间,通过一扇边框仅0.8厘米的磁吸式玻璃门完美区隔,远看几乎隐形,炒菜时关门,睡觉时开门,油烟被牢牢锁在1.5米的过道里,卧室一侧完全闻不到任何味道。

这扇门还能完全吸附在墙面上,达到完全隐形的效果,朋友第一次来访时,甚至以为厨房是后期PS上去的。
性价比超高的改造
整屋改造总预算18万元,其中硬装12万,可变家具3万,家电3万,比同小区同面积的精装房便宜了5万元,入住三个月后,业主在朋友圈感慨:"原来'美式'不是大房子的专属,38㎡也能住出松弛感。"

面对评论区铺天盖地的询问链接,设计师只回应了一句话:"别急着抄作业,先量好自家玄关尺寸——差两公分,油烟机就可能塞不进去。"这个38㎡的空间奇迹证明,好的设计不在于面积大小,而在于如何智慧地利用每一寸空间。
本网站的文章部分内容可能来源于网络,仅供大家学习与参考,如有侵权,请联系站长QQ18376601进行删除处理。

蜀ICP备2021014085号-4