132㎡美式宅大改造,变身理想家居,住得太舒心了!
2025.11.20 3 0
这套132㎡的美式风格住宅经过精心改造,焕然一新成为理想中的舒适居所,设计师巧妙融合经典美式元素与现代实用功能,通过开放式布局优化空间动线,搭配暖色调木质家具与复古装饰细节,营造出温馨优雅的氛围,客厅采用浅色系软装与深色实木家具的对比,辅以柔和的灯光设计;餐厅区域定制卡座与圆形吊灯增添美式情调;主卧以灰蓝色墙面搭配白色护墙板,打造静谧休憩空间,全屋特别注重收纳规划,嵌入式柜体与多功能家具兼顾美观与实用性,最终呈现出一个既保留美式风格精髓,又完全契合当代生活需求的理想之家。
户型亮点
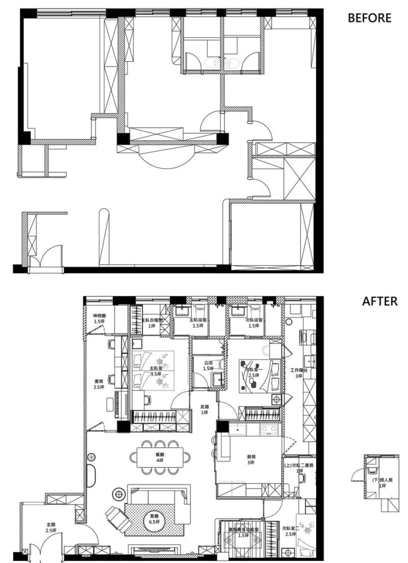
本案为132㎡三室两厅结构,设计师通过拆除非承重墙实现LDK一体化布局,客厅开间达4.8米,重点改造包含:
- 将北向次卧改为多功能书房(可兼客房)
- 主卫实现三分离设计
- 阳台纳入客厅并增设地台休闲区
色彩搭配
墙面选用立邦「杏子灰」OC-19打底,搭配深胡桃木色家具形成层次,软装通过雾霾蓝丝绒沙发、黄铜吊灯提亮空间,地毯选用抽象几何图案平衡复古与现代感。

定制细节

- 餐边柜:中部留空60cm嵌入小家电,底部抽屉做分类收纳
- 飘窗改造:加装电动升降桌,下方隐藏储物格
- 厨房:石英石台面做弧形挡水条,吊柜下方增加LED灯带
动线优化
特别在玄关处增设800mm宽悬浮鞋柜,底部预留18cm常鞋位,走廊通道保留1.2m宽度,转角处做弧形处理避免磕碰。

软装清单
主沙发:Harbor House经典款(防抓绒面料)
茶几:壹间家居黑胡桃木双层款
窗帘:透光不透影的香格里拉帘+亚麻纱帘双层配置

入住体验
屋主反馈最实用的三个设计:
① 厨房高低台面(烹饪区80cm/备餐区92cm)
② 全屋智能灯光系统
③ 主卧步入式衣帽间的旋转镜柜设计

(注:实际装修费用约28万,硬装占比65%)

本网站的文章部分内容可能来源于网络,仅供大家学习与参考,如有侵权,请联系站长QQ18376601进行删除处理。

蜀ICP备2021014085号-4