89㎡奶油侘寂风小3居,北京质朴美学宅的逆袭
2025.12.11 2 0
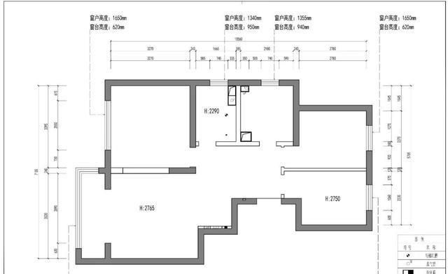
本案为北京89㎡小三居改造项目,设计师以奶油侘寂风为基调,打造质朴温馨的治愈系住宅,全屋采用微水泥墙面与浅木色地板,搭配弧形线条弱化空间棱角,营造柔和氛围,客厅通过LDK一体化设计串联餐厨区,嵌入式收纳柜与隐形门保持视觉清爽;主卧以地台床+悬浮衣柜实现小空间高效利用,次卧定制榻榻米兼顾储物与客房功能,细节上运用藤编元素、艺术涂料与暖光照明,在简约中渗透自然肌理与侘寂美学,最终实现"小户型显大、预算可控却高级感十足"的改造目标,完美平衡功能性与艺术格调。(198字)
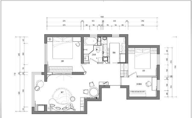
客厅大胆拆除电视墙,改用360°旋转支架,白天对着沙发追剧,晚餐时转向餐桌,边吃饭边看《繁花》,再也不用端着饭碗来回跑动,这种动态布局让客厅功能实现1+1>2的效果。
厨房改造更是颠覆常规:将U型台面截断,嵌入1.8米多功能岛台,下部整合洗碗机、分类垃圾桶和米箱,台面秒变早餐吧,屋主特别点赞包饺子场景——左侧擀皮右侧煮锅,还能兼顾辅导孩子作业,动线流畅得令人惊叹。

卧室仅2.8米面宽却暗藏玄机:床尾打造顶天立地镜面衣柜,视觉空间瞬间翻倍,最妙的是右侧30cm窄缝设计,内置叠衣板和隔夜衣区,晨起取衣不开灯也不会打扰伴侣,细节处尽显人性化考量。
卫生间采用三分离升级版:将洗手台外移至走廊,彻底解决早高峰抢厕所难题,湿区选用折叠门设计,既能完全展开避免水渍外溅,又便于清洁打理,实用性满分。

未封闭的阳台铺装防腐木地板,搭配可升降晾衣架,晒被子也能仪式感十足,角落的猫爬架成为宠物观景台,看楼下嬉戏的孩童比电视节目更有趣味。

全屋采用珍珠白+原木色为基调,用绿植替代传统装饰,屋主分享心得:"绿植比摆件更鲜活,20元换一周好心情,比装饰画更划算。"这种可持续的软装思路值得借鉴。

总预算20万出头的分配堪称教科书级别:硬装12万夯实基础,软装3万画龙点睛,家电5万提升品质,正如屋主所言:"把钱花在核心需求上,才是真正的奢侈。"

这个案例证明:小户型的豪华感不在于堆砌装饰,而在于对每寸空间的极致利用,当功能与舒适度达到完美平衡,89㎡也能住出大平层的惬意。

本网站的文章部分内容可能来源于网络,仅供大家学习与参考,如有侵权,请联系站长QQ18376601进行删除处理。

蜀ICP备2021014085号-4