60㎡原木风小户型装修,轻松打造大气空间感
2025.12.25 1 0
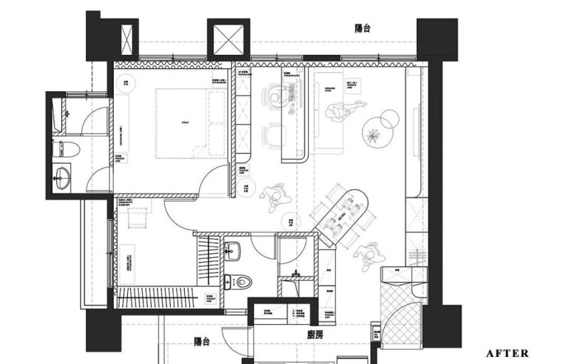
这套60㎡原木风小户型通过巧妙设计打破空间局限,呈现出开阔通透的视觉效果,全屋采用浅色原木与白色为主基调,搭配隐藏式收纳和多功能家具,如折叠餐桌、悬浮式储物柜,实现实用性与美感的平衡,客厅通过落地窗引光入室,搭配低矮家具拉伸层高;开放式厨房与岛台形成洄游动线,节省空间的同时增强互动性,卧室采用地台床设计,底部暗藏储物空间,整体以极简线条和自然材质营造温暖氛围,证明小户型通过合理规划同样能兼具功能性与高级感。(约180字)
玄关设计:功能与美学的平衡
入户区域巧妙利用高柜体与穿鞋椅的组合,既保障隐私性,又满足日常收纳需求,原木格栅元素的运用,为空间增添了一抹轻盈的呼吸感。
客厅设计:弧线勾勒灵动感
客厅以一道弧形侧柜界定空间,流畅的线条弱化了柜体的厚重感,搭配低饱和度的奶油墙面,营造出柔和而通透的公共区域,落地窗引入自然光,让原木家具的温润质感更显层次。

餐厨设计:斜角延展空间感
餐桌以斜面设计巧妙衔接厨房与客厅,细格栅桌脚与玄关元素呼应,形成视觉连贯性,开放式厨房采用浅色系橱柜,搭配隐藏式灯带,实用性与氛围感兼具。

主卧设计:收纳与挑高的艺术
L形衣柜最大化利用转角空间,顶部悬空设计减轻压迫感,窗帘盒内嵌的倒吊灯带,成为夜晚的柔和光源,营造出悬浮般的轻盈效果。

SEENDA声达全屋定制 专注打造兼具实用与美感的个性化空间,以低调的奢华笔触,诠释现代家居的细腻品质,每个功能区既独立又相互渗透,细节之处尽显生活格调。

本网站的文章部分内容可能来源于网络,仅供大家学习与参考,如有侵权,请联系站长QQ18376601进行删除处理。

蜀ICP备2021014085号-4