精装房逆袭,刷美剧装出自然美式风,细节超戳心!
2025.12.31 1 0
本案是一套精装房改造项目,业主通过反复揣摩美剧中的生活场景,打造出充满自然气息的美式风格家居,设计上保留了精装房原有格局,通过定制深胡桃木色家具、做旧金属灯具和复古玻璃元素,营造出经典美式氛围,客厅采用围合式沙发布局搭配壁炉造型电视墙,餐厅定制卡座与圆桌组合提升温馨感,主卧背景墙运用石膏线勾勒美式线条,细节处尤为用心:玄关藤编换鞋凳、厨房复古小砖、卫生间黄铜五金件等,均还原了美剧中自然不做作的生活质感,实现精装房的完美逆袭。(198字)
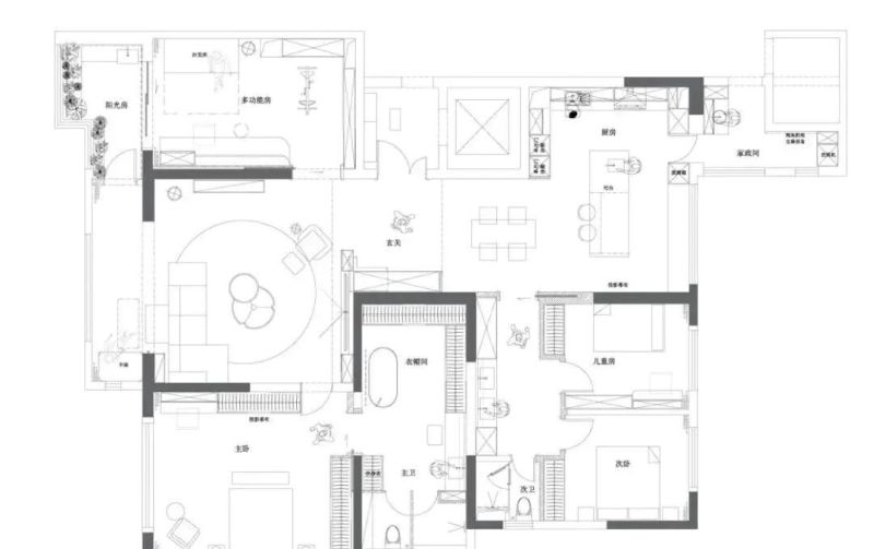
玄关:实用与仪式感的完美平衡
原户型玄关过宽导致空间浪费,改造后适度收窄,将面积让给餐厅,整墙嵌入式收纳柜容量惊人,中间巧妙设计壁龛展示收藏品,一盏美式田园吊灯搭配天然洞石台面,进门瞬间氛围感拉满,归家仪式感直接升级。
客厅:通透布局+隐藏式多功能区
打通阳台后,客厅采光和视野瞬间翻倍,电视机巧妙移至北墙,形成半围合式观影区,彻底解决走道干扰问题,沙发后方暗藏玄机——多功能桌游区可随时切换聚会模式,悬浮式卡座拯救凹阳台缺陷,镜面设计延伸空间感,假梁造型弱化客厅与阳台的分界,美式复古韵味悄然流露。

餐厨:社交型厨房,复刻美剧生活场景
开放式厨房搭配中岛台,做饭秒变社交现场,餐厅外移扩容后,6人位长桌满足家庭聚餐需求,这里不仅是味蕾的加油站,更是生活方式的展演台:早餐咖啡、周末酒会、深夜谈心……《老友记》的同款烟火气扑面而来。

主卧套间:私密与功能的双重奏
拆改墙体后,衣帽间与主卫形成流畅的三分离动线,浴缸被巧妙嵌入衣帽区,泡澡选衣一步到位,主卧门改为隐形设计藏于客厅背景墙,L型储物柜容纳四季衣物,靠窗双人书桌让夫妻俩互不干扰,睡眠区用低饱和度配色+软包床头,营造美式特有的包裹感。

书房:工作与健身的复合空间
拆除非承重墙打造半开放书房,2.4米定制书桌支持三屏办公,搭配人体工学椅久坐不累,侧边预留健身区,工作间隙随时来组燃脂训练,电竞、办公、运动无缝切换,堪称宅家全能舱。

从“华丽样板间”到“自然生长家”,这次改造告诉我们:理想的家,不在于堆砌风格,而在于每一处细节都为真实生活服务。

本网站的文章部分内容可能来源于网络,仅供大家学习与参考,如有侵权,请联系站长QQ18376601进行删除处理。

蜀ICP备2021014085号-4