82㎡现代意式雅居,木纹暖意邂逅深邃黑调,演绎动静皆宜的格调生活
2025.12.31 3 0
这套82㎡现代意式住宅以木色与黑调碰撞出高级感,通过材质与色彩的平衡营造"动静相宜"的居住美学,空间以温润木饰面为基底,搭配哑光黑金属、深灰岩板等冷感材质,形成冷暖对比的视觉张力,开放式布局中,悬浮式木作柜体与线性灯光弱化体量感,餐厨区黑色玻璃移门实现通透与分区,主卧延续整体调性,木格栅床头与皮质软包构成质感层次,步入式衣帽间采用灰玻隔断保持通透,设计通过克制用色与几何块面组合,在有限面积中实现现代简约与意式优雅的融合,满足都市人对品质生活的双重期待。(198字)
项目档案
LOCATION | 宝辉尚城
CITY | 中国·宁波
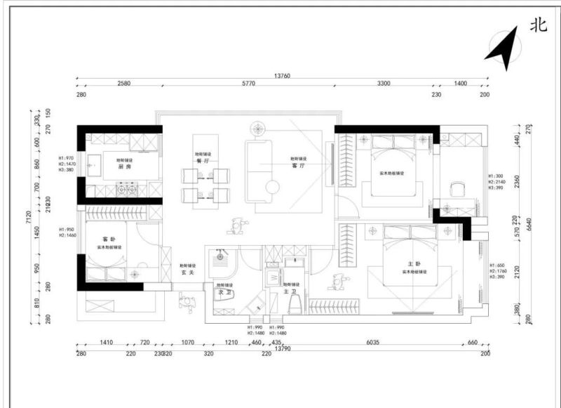
LAYOUT | 三室两厅一卫
AREA | 82平方米
STYLE | 现代意式风格
DESIGN | 浙江南鸿装饰
设计理念
本案巧妙运用客餐厅一体化布局,通过270°落地窗引入自然光线,使82㎡的空间呈现开阔通透的视觉效果,设计师采用意大利现代设计手法,以胡桃木饰面与深灰石材为主材,通过材质冷暖对比构建空间张力,连续性的立面处理强化了整体协调性。
空间摒弃繁复装饰,通过 minimalist 设计语言打造出兼具质感与功能性的生活场域,悬浮式家具、隐形门等细节处理,在有限面积中创造无限可能。
空间解析
客厅·流动的艺术
横厅格局打破传统分区界限,L型转角沙发可随使用需求自由组合,电视背景墙采用「木饰面+格栅+岩板」三重材质碰撞:

- 右侧隐形门设计保持立面完整性
- 纵向格栅拉伸视觉层高
- 悬浮式黑曜石电视柜提升空间轻盈感
过道处增设嵌入式水吧台,哑光黑台面与客厅主色调呼应,满足日常咖啡冲泡、茶饮准备等功能需求。

餐厅·材质交响曲
T型胡桃木餐桌与石英石岛台形成材质对话:

- 餐桌延伸部分可用作临时工作区
- 岛台下设隐藏式储物格
- 餐椅选用意大利Bonaldo同款丝绒材质
厨房·人性化细节
U型布局实现黄金三角动线:

- 灶台区降低5cm符合人体工学
- 吊柜底部增设LED灯带
- 灰色石英石台面无缝拼接
卧室·静谧之境
主卧突破传统布局:

- 玄关柜体隔断解决风水顾虑
- 悬浮式梳妆台延伸自衣柜
- 飘窗改造为日式榻榻米休憩区
儿童房设计亮点:

- 长虹玻璃柜门透光不透影
- 蝴蝶造型金属拉手增添童趣
- 可调节成长型书桌
卫浴·极致收纳
钻石型淋浴房实现干湿分离:

- 斜切式台盆柜完美利用转角
- 镜柜延伸至马桶区
- 壁挂式马桶节省空间
设计后记
在这个现代意式居所中,设计师通过「木的温润」与「石的冷峻」奏响空间协奏曲,从晨光中的咖啡时光,到夜晚飘窗前的阅读时刻,每个细节都诉说着对品质生活的理解,项目证明:小户型通过精准设计,同样能实现功能与美学的完美平衡。

(本文由家居知识网lswed.com专业呈现,转载需授权)

本网站的文章部分内容可能来源于网络,仅供大家学习与参考,如有侵权,请联系站长QQ18376601进行删除处理。

蜀ICP备2021014085号-4