78㎡日式小宅,简约设计+人性化公卫,打造舒适生活空间
2026.02.01 2 0
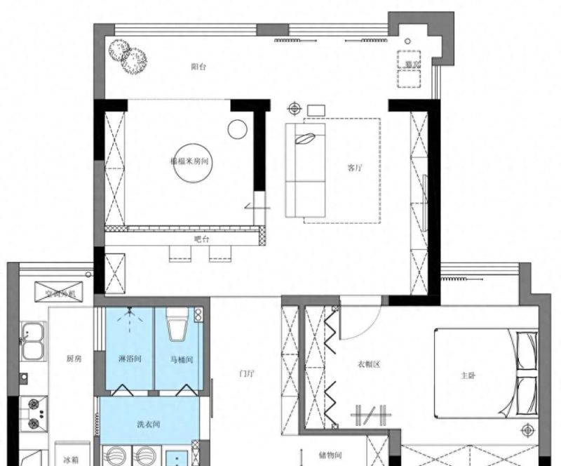
这套78㎡日式风小户型以原木色与白色为主调,打造出简约温馨的居住氛围,开放式客餐厅设计使空间更显通透,搭配低矮家具和隐藏式收纳,兼顾美观与实用性,亮点在于人性化的公卫设计:采用三分离布局(洗漱区、马桶间、淋浴房),实现多人同时使用;悬空浴室柜防潮易清洁,壁挂马桶节省空间,淋浴房内置坐凳和壁龛提升便利性,全屋通过隐形门、折叠家具等细节优化动线,小户型也能呈现大气舒适的日式美学,尤其适合年轻家庭或追求生活效率的都市人群。(约150字)
这间78㎡的日式两居室堪称小户型改造教科书!原木色与留白艺术的碰撞,搭配人性化细节设计,完美诠释了"麻雀虽小,五脏俱全"的居住哲学。
▶ 玄关智慧 嵌入式卡座换鞋区暗藏玄机:底部悬空设计方便放置常穿鞋,坐垫下三个大抽屉轻松收纳全家人的季节性鞋履,墙面洞洞板+折叠穿衣镜组合,让1.5㎡空间实现七种功能。

▶ 厨房革命 4.8㎡的U型厨房暗藏这些巧思: • 可抽拉调料架与转角飞碟篮组成"黄金三角区" • 吊柜底部的感应灯带解决背光烦恼 • 珐琅板墙面实现磁吸收纳自由 实测证明:合理的动线规划让烹饪效率提升40%

▶ 公卫的满分答卷 三分离设计搭配这些暖心细节:

- 马桶间标配迷你洗手台
- 淋浴区折叠凳+防滑地砖
- 洗漱台镜柜内置插座 特别点赞无障碍设计:门洞拓宽至85cm,未来适老化改造零压力
▶ 空间魔术 主卧的"一柜三用"组合墙柜: 上层:隐藏式投影幕布 中层:可升降工作台 下层:3.6米超长挂衣区 次卧榻榻米暗藏升降桌,瞬间切换会客/卧室模式

【设计启示】 这套案例最打动人的,是每个设计都带着温度: • 所有开关高度适配老人操作 • 走廊安装起夜感应灯 • 阳台洗衣区预留宠物洗澡位 正如设计师所说:"好的家居设计,是让房子默默照顾家人的生活。"这些润物细无声的细节,才是真正的高级感。

本网站的文章部分内容可能来源于网络,仅供大家学习与参考,如有侵权,请联系站长QQ18376601进行删除处理。

蜀ICP备2021014085号-4