65平北欧风小宅,清新客厅格调满分
2026.02.02 3 0
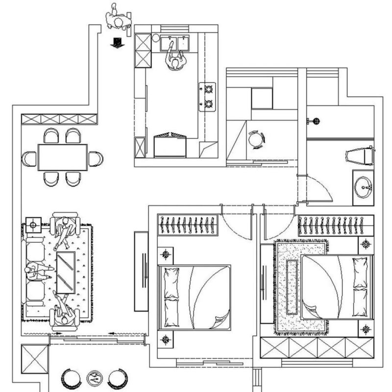
这套65平米的北欧文艺小户型以清新、整洁、舒适的设计风格令人着迷,客厅采用浅色调为主,搭配原木家具和绿植,营造出自然温馨的氛围,简约的布艺沙发、几何图案地毯和创意挂画增添了文艺格调,而大面积的采光让空间更显通透,整体设计注重实用性与美感的平衡,巧妙利用收纳保持整洁,打造出一个既时尚又宜居的小户型典范。
偶然发现这套套内65㎡的北欧风两居室,瞬间被它清新治愈的氛围击中!浅灰色墙面贯穿客餐厅,视觉上放大空间感,淡蓝色布艺沙发搭配原木茶几,文艺气息扑面而来,最惊艳的是餐厅区域——整面墙的到顶餐边柜采用隐藏式灯带设计,既能展示藏品又能收纳杂物,小户型秒变「收纳教科书」!

厨房采用白色U型橱柜+集成灶组合,动线合理不占地,墙面小白砖勾缝处理更显精致,主卧用湖蓝色床品营造静谧感,床头小象玩偶增添俏皮元素;次卧预留老人房功能,榻榻米+嵌入式衣柜的设计贴心满分。

✨ 户型亮点解析:
1️⃣ 全屋莫兰迪色系搭配,高级不显压抑
2️⃣ 定制家具严丝合缝,榨干每1㎡
3️⃣ 软装多用绒布/藤编材质,触感温暖
4️⃣ 绿植+装饰画点缀,生活气与艺术感并存

(小贴士:小户型建议选择细腿家具,视觉更通透哦~)这样的神仙设计,你觉得打几分?

本网站的文章部分内容可能来源于网络,仅供大家学习与参考,如有侵权,请联系站长QQ18376601进行删除处理。
已无下一篇

蜀ICP备2021014085号-4