现代简约风的家,清爽舒适不落俗套
2025.08.17 1 0
这套现代简约风住宅展现了清爽舒适的居家美学,全屋以纯白和原木色为主调,搭配无主灯设计和隐形收纳系统,营造出开阔通透的视觉感,客厅采用悬浮式电视柜与模块化沙发,餐厅配置岩板餐桌与线性吊灯,主卧通过玻璃隔断实现衣帽间分区,细节处可见智能家居系统和艺术摆件点缀,既保持极简基调又不失温度,案例证明,通过克制用色、精简造型和人性化动线规划,现代简约风能完美平衡实用性与高级感,打破"性冷淡"刻板印象,成就经久耐看的品质生活空间。(198字)
第一次装修的年轻人,像在满是岔路的迷宫里找出口——想个性怕装成“乱搭现场”,想宽敞怕挤得转不开身,想私密怕进门就暴露客厅,想给孩子留空间怕老人过来没地方住,越想越崩溃,越装越犹豫。

直到看到北京这套118㎡的现代简约风案例,才懂:好的风格不是束缚,而是给生活搭了个“温柔的舞台”,把所有痛点都变成了藏在细节里的惊喜。

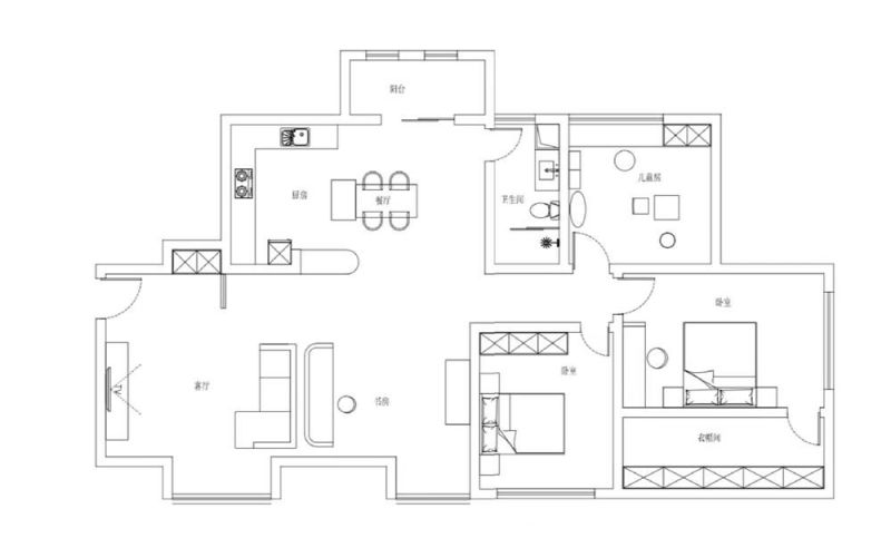
进门对面加了块洞洞板隔断,地面铺瓷砖当落尘区,既挡住了客厅的视线,又没让过道变狭长。鞋柜藏在左侧内陷墙里,被隔断分成两半也能装下全家的鞋子,洞洞板上挂着帆布包和钥匙,像给回家的脚步垫了块“软乎乎的缓冲垫”。

书房做成开放式,和客餐厅连在一起。弧形半墙书桌绕着窗户,办公时能听到客厅孩子的笑声,转身就能抱他坐在腿上。大横厅的开阔没丢,互动感倒多了几分,像把“工作区”变成了“生活的旁观者”。

厨房打通做开放式,用岛台连餐厅。妈妈在岛台切菜,孩子在旁边摆盘子,老人在餐厅剥虾,动线顺得像“流水席”。岛台既能备餐又能当餐桌,比以前的厨房大了一圈,再也不会挤得撞胳膊。

客厅用低饱和度的灰和白,转角沙发像“云朵”一样轻,圆几小巧得能随便挪。飘窗柜铺了软软的垫子,孩子能爬上去看书,大人能坐下来喝奶茶,阳光照进来,连影子都透着“松弛感”。

主卧加了独立衣帽间,用开放式支架挂衣服,比传统衣柜省了一半空间。床头旁边做了悬浮书桌,既能梳妆又能办公,推开门是衣帽间的衣服,转身是书桌的台灯,像把“卧室”变成了“私人城堡”。

儿童房没做固定柜子,留了大空间放玩具柜和爬行垫。孩子能在里面跑、爬、搭积木,以后长大改书桌也方便,像给孩子留了个“成长的空盒子”,装得下所有童年时光。

客餐厅和书房之间用了悬浮吧台,既把空间分开又没挡住视线。早上在吧台喝牛奶,晚上在书房加班,转身就能拿到吧台上的咖啡,动线像“洄游的鱼”一样顺,连空气都透着“自由的味道”。
这套案例没什么“眼前一亮”的设计,却像一杯温温的蜂蜜水,越喝越舒服。现代简约风不是“没风格”,而是把风格藏在生活的细节里——给个性留了空间,给孩子留了成长,给老人留了落脚的地方。家不是“装出来的”,是“住出来的”,越看越耐看,越住越温暖。
本网站的文章部分内容可能来源于网络,仅供大家学习与参考,如有侵权,请联系站长QQ18376601进行删除处理。

蜀ICP备2021014085号-4