180㎡绝美法式大平层,干净治愈的优雅生活空间
2025.09.13 1 0
这套180㎡的法式大平层以简约优雅的设计诠释了现代法式风的精髓,全屋采用奶油白为主色调,搭配浅灰与原木色,营造出明亮通透的治愈系氛围,客厅通过弧形线条与雕花灯盘延续法式浪漫,鱼骨拼木地板与无主灯设计增添现代感;餐厨一体空间以中岛台为核心,搭配复古黄铜吊灯;主卧采用双开门设计,衣帽间与四分离卫浴构成豪华套间,设计师巧妙运用石膏线、拱形门洞等元素,在保留法式精髓的同时简化繁复装饰,最终呈现出一个既高级又不失烟火气的理想居所。
在空间美学中,优雅从不受限于户型大小,今天带您品鉴的这套178㎡大平层,以细腻工艺颠覆传统格局,通过大胆的软装搭配与精致细节,完美诠释了法式风格的永恒魅力,纯净的色调与流畅的动线,共同构筑了这个令人心驰神往的治愈系居所。
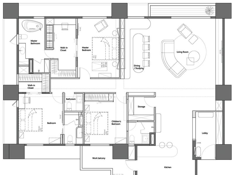
户型解析 本案为套内180㎡的3房2厅格局,方正户型搭配科学动线,堪称大平层的理想范本,设计师巧妙融合古典与现代元素,以软装作为风格灵魂,打造出独具匠心的折衷主义法式风情。
玄关:优雅的第一乐章 独立玄关采用拱顶线板设计,既保障隐私又延伸视觉空间,玫瑰粉长凳与黑云石、卡拉拉石拼花地砖相映成趣,在简约中透露出低调的奢华质感,银狐色地砖的穿插点缀,为空间注入灵动韵律。
客厅:通透的艺术剧场 开放式布局让阳光在浅米白与淡玫瑰色的主调中自由流淌,设计师摒弃传统隔断,通过家具与灯具实现功能分区:
- 电视墙选用黑纹白石材打造极简背景
- 悬浮式地台设计减轻视觉厚重感
- 临窗单椅区构成惬意阅读角落
- 水晶吊灯与弧形沙发勾勒出优雅轮廓
餐厅:浪漫的味觉盛宴 圆弧卡座设计兼顾实用与美学:

- 粉色蛋卷状靠背营造慵懒氛围
- 隐藏式线板柜门实现收纳隐形
- 黄铜吊灯与大理石餐桌碰撞出轻奢质感
- 餐边柜的玻璃展示格珍藏生活仪式感
厨房:光影的诗意舞曲 针对采光不足的痛点,设计师给出满分解决方案:

- 开放式布局+穹顶天花提升空间感
- 藕灰石纹砖墙面形成流动云彩效果
- 嵌入式家电保持台面整洁统一
- 复古吧台延伸出早茶时光区(实木桌脚+金属吊灯)
主卧套间:私密的优雅殿堂 睡眠区:

- 手工刷纹绷布床头搭配古铜饰条
- 现代蓝柜体平衡古典与现代
- 欧式双开门划分功能区域
衣帽间:

- 茶色玻璃柜门营造通透质感
- 悬浮式梳妆台配智能化妆镜
- 线性壁灯提供专业化妆光源
主卫:

- 三分离布局提升使用效率
- 壁龛收纳取代外露五金件
- 独立浴缸实现星级酒店体验
次卧:定制的法式优雅

- 绒布床头复刻油画笔触质感
- 水磨石纹靠背增添艺术气息
- 木百叶窗调节光影韵律
- 五斗柜线板细节彰显匠心
儿童房:成长的创意天地 前瞻性设计满足不同成长阶段:

- 几何拼色墙板塑造立体层次
- 可替换壁纸预留改造空间
- 模块化家具适应需求变化
- 环保材质守护健康童年
卫浴空间:统一的精致哲学 三间卫生间各具特色:

- 主卫采用酒店式干湿分离
- 次卫加宽台面方便长辈使用
- 儿童卫浴延续公区石材元素
- 统一采用壁龛保持视觉整洁
设计启示录 这套大平层完美示范了如何: ✓ 平衡古典与现代审美 ✓ 通过软装凸显风格个性 ✓ 用细节提升空间质感 ✓ 实现美观与实用的统一

您是否也被这份法式优雅所打动?欢迎在评论区分享您的家居美学观点,点击关注获取更多精品案例解析,下期将带您探秘侘寂风别墅的禅意世界!

本网站的文章部分内容可能来源于网络,仅供大家学习与参考,如有侵权,请联系站长QQ18376601进行删除处理。

蜀ICP备2021014085号-4